Portofino by Firstyle Homes


Floor-plan options for Portofino

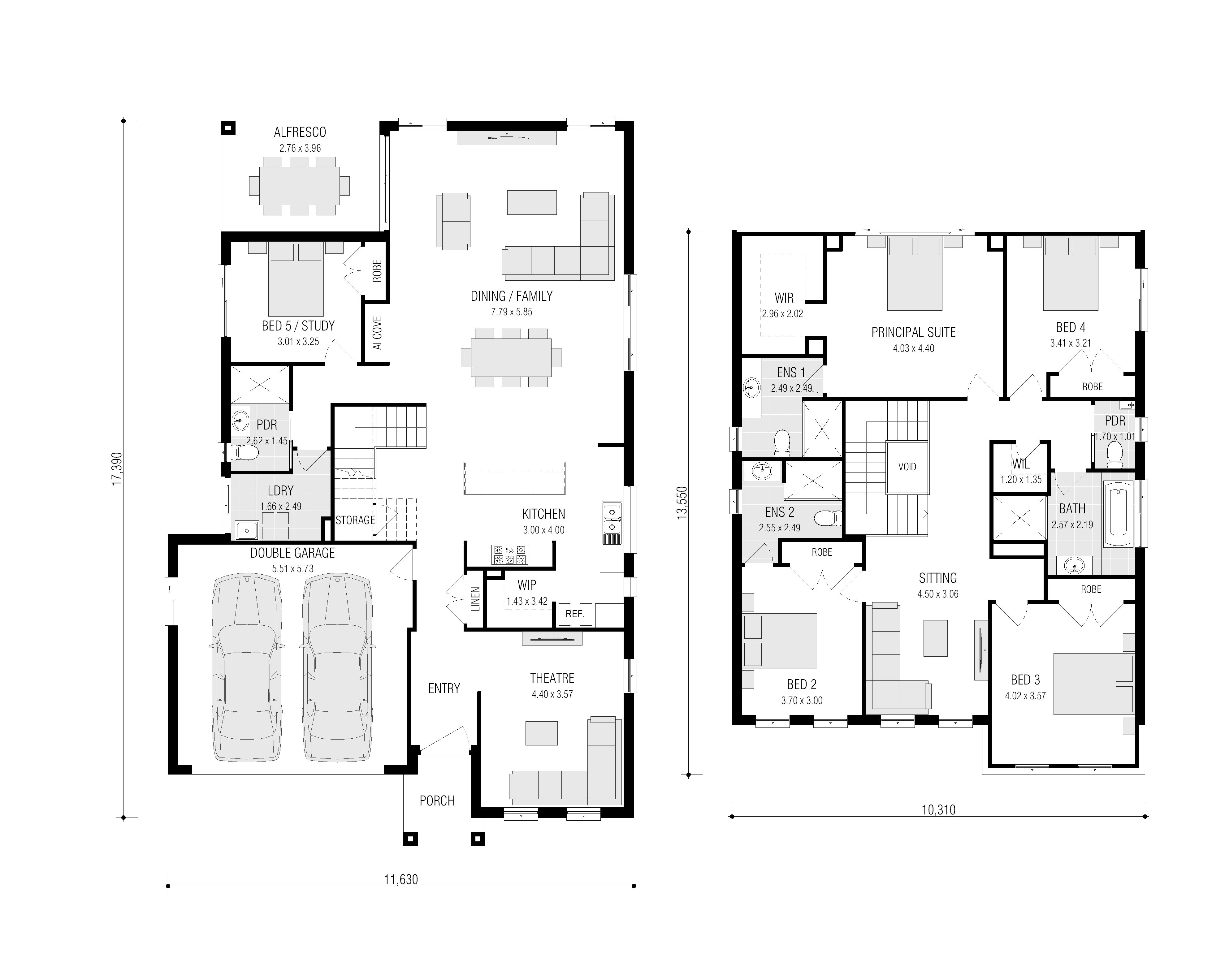
Portofino
Bed 5
Bath 4
Car 2
Home Design: Portofino
Building Type: Double Storey
Floor Area: 315.68m2
House Width: 11.63m
House Length: 17.39m

Display Homes & 3D Tours for Portofino by Firstyle Homes

Loading...
Portofino by Firstyle Homes