Lot 709, 72 Charters Way by H&L Victoria - Huntly

TITLED PREMIUM TURNKEY GLENBURN 25

Lot 709, Charters Way, Huntly (Viewpoint Bendigo)

This is a NEW house and land package to be constructed, NOT an established home.

PREMIUM TURNKEY HOMES WITH MORE VALUE IN EVERY BASE PRICE

Featuring more than $70,000 worth of premium inclusions upfront, H&L Victoria provides First Home Buyers and busy Investors with a simplified process and a fully completed turnkey solution for their new home needs.

PREMIUM INCLUSIONS

- 7 Star energy rating
- Front & rear landscaping
- Half share fencing & driveway
- Flooring throughout
- Higher ceilings
- LED downlights throughout
- Modern appliances including dishwasher
- Overhead cupboards to kitchen
- Blinds throughout
- 5kW split system cooling
- Tiled shower bases
- Chrome finish double towel rails and toilet roll holders
- Framed mirror or vinyl sliding doors to robes
- Brick infills over windows
- Remote control garage
- Window locks & flyscreens to all openable windows
- Clothesline and letter box
- NBN connection
- 3kW PV solar panel system to roof


* This is a house and land package which has not been constructed. Please enquire to find out estimated build time. The facade image shown is for illustrative purposes only. Pricing corrects at time of publication, but subject to change without notice due to (not limited to) land delays, site conditions and regulation changes. Package price excludes stamp duty on land, legal fees and conveyancing costs including titles and property report. Floorplan is a representation of a standard facade unless otherwise stated. H & L reserves the right to alter the images or descriptions without notice. External & Internal photographs are for visual purposes only. Finance eligibility will depend on individual circumstances and applicable lending criteria.
H&L Victoria
Lot 709, 72 Charters Way, Huntly VIC 3551 Available
Bed  4 Bath  2 Car  2
Land Size: 534.00m²
Frontage: 12.34m
Depth: 31.814m
Price: $633,493

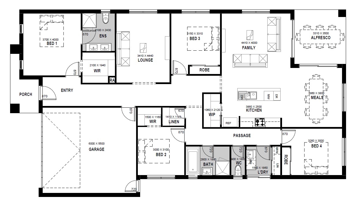
Floor-plan for Lot 709, 72: by H&L Victoria


Location & Map of Huntly

Loading...

Visit Display Villages near Huntly VIC 3551


More House and Land Packages by H&L Victoria (Home Builder)

Bed  4 Bath  2 Car  2
Land Size: 392.00m²
Frontage: 14m
Depth: 28m
TITLED PREMIUM TURNKEY MONTVILLE 22
Lot 3551, Horsham Parade, Fyansford (Gen Fyansford)

This is a NEW house and land package to be constructed, NOT an established home.

PREMIUM TURNKEY HOMES WITH MORE VALUE IN EVERY BASE PRICE

Featuring more than $70,000 worth of premium inclusions upfront, H&L Victoria provides First Home Buyers and busy Investors with a simplified process and a fully completed turnkey solution for their new home needs.

PREMIUM INCLUSIONS

- 7 Star energy rating
- Front & rear landscaping
- Half share fencing & driveway
- Flooring throughout
- Higher ceilings
- LED downlights throughout
- Modern appliances including dishwasher
- Overhead cupboards to kitchen
- Blinds throughout
- 5kW split system cooling
- Tiled shower bases
- Chrome finish double towel rails and toilet roll holders
- Framed mirror or vinyl sliding doors to robes
- Brick infills over windows
- Remote control garage
- Window locks & flyscreens to all openable windows
- Clothesline and letter box
- NBN connection
- 3kW PV solar panel system to roof


* This is a house and land package which has not been constructed. Please enquire to find out estimated build time. The facade image shown is for illustrative purposes only. Pricing corrects at time of publication, but subject to change without notice due to (not limited to) land delays, site conditions and regulation changes. Package price excludes stamp duty on land, legal fees and conveyancing costs including titles and property report. Floorplan is a representation of a standard facade unless otherwise stated. H & L reserves the right to alter the images or descriptions without notice. External & Internal photographs are for visual purposes only. Finance eligibility will depend on individual circumstances and applicable lending criteria.
Price: $850,590
Bed  4 Bath  2 Car  2
Land Size: 392.00m²
Frontage: 14m
Depth: 28m
TITLED PREMIUM TURNKEY GLENBURN 25
Lot 3551, Horsham Parade, Fyansford (Gen Fyansford)

This is a NEW house and land package to be constructed, NOT an established home.

PREMIUM TURNKEY HOMES WITH MORE VALUE IN EVERY BASE PRICE

Featuring more than $70,000 worth of premium inclusions upfront, H&L Victoria provides First Home Buyers and busy Investors with a simplified process and a fully completed turnkey solution for their new home needs.

PREMIUM INCLUSIONS

- 7 Star energy rating
- Front & rear landscaping
- Half share fencing & driveway
- Flooring throughout
- Higher ceilings
- LED downlights throughout
- Modern appliances including dishwasher
- Overhead cupboards to kitchen
- Blinds throughout
- 5kW split system cooling
- Tiled shower bases
- Chrome finish double towel rails and toilet roll holders
- Framed mirror or vinyl sliding doors to robes
- Brick infills over windows
- Remote control garage
- Window locks & flyscreens to all openable windows
- Clothesline and letter box
- NBN connection
- 3kW PV solar panel system to roof


* This is a house and land package which has not been constructed. Please enquire to find out estimated build time. The facade image shown is for illustrative purposes only. Pricing corrects at time of publication, but subject to change without notice due to (not limited to) land delays, site conditions and regulation changes. Package price excludes stamp duty on land, legal fees and conveyancing costs including titles and property report. Floorplan is a representation of a standard facade unless otherwise stated. H & L reserves the right to alter the images or descriptions without notice. External & Internal photographs are for visual purposes only. Finance eligibility will depend on individual circumstances and applicable lending criteria.
Price: $859,361
Bed  4 Bath  1 Car  2
Land Size: 393.00m²
Frontage: 14m
Depth: 28.05m
CO-LIVING PREMIUM TURNKEY MONTVILLE 22
Lot 2012, Horseshoe Bend Road, Charlemont (Charlemont Rise)

TITLED LAND! Exclusive Limited Time Offer

CO-LIVING BY H&L VICTORIA

This is a NEW house and land package to be constructed, NOT an established home. H&L Victoria provides First Home Buyers and busy Investors with a simplified process and a fully completed turnkey solution for their new home needs.

CO-LIVING (*Terms & Conditions apply)

●5-Year Rental Guarantee*
●High yield and Capital growth*
●Cashflow positive property*
●Better resale appeal and value*

PREMIUM INCLUSIONS

●7 Star energy rating & PV solar panel system to roof
●Front & rear landscaping including fencing & driveway
●Split system cooling to 3 beds & main living area
●Flooring, downlights throughout
●Modern appliances including dishwasher
●Overhead cupboards to kitchen
●Blinds, window locks & flyscreens
●Chrome double towel rails & toilet roll holders
●Brick infills over windows
●Remote control garage
●Clothesline & letterbox

The facade shown is for illustrative purposes only. Furniture pack not included and will be an additional charge.

* Pricing corrects at time of publication, but subject to change without notice due to (not limited to) land delays, site conditions and regulation changes. Package price excludes stamp duty on land, legal fees and conveyancing costs including titles and property report. Floorplan is a representation of a standard facade unless otherwise stated. H & L reserves the right to alter the images or descriptions without notice. External & Internal photographs are for visual purposes only. Finance eligibility will depend on individual circumstances and applicable lending criteria.
Price: $760,565

Land Price Trend in Huntly VIC 3551

  • In Oct - Dec 24, the median price for vacant land in Huntly VIC 3551 was $256,400. *
  • From Oct - Dec 17 to Oct - Dec 24, the median price for vacant land in Huntly VIC 3551 has increased 119.15%. *
  • From 2009 to 2024, the median price for vacant land in Huntly VIC 3551 has increased 463.33%. *
* Price data comes from Valuer-General Victoria on 05/06/25

Vacancy Rate in Huntly VIC 3551

View full vacancy rate history in Huntly VIC 3551 via SQM Research.


Schools in Huntly VIC 3551

There is 1 school registered in on ACARA 2024

Lot 709, 72 Charters Way by H&L Victoria
Charters Way, Huntly VIC 3551
House & Land: 4 Bed | 2 Bath | 2 Car @ $633,493