Lot 120 The Fairways by Stylemaster Homes - Kensington Grove

My Retreat 236 + Guest Accommodation

Discover your dream home with this beautifully designed House and Land Package from our exclusive My Dream Collection. Thoughtfully crafted for spacious living, this home blends timeless country charm with modern design, quality finishes, and effortless functionality — the perfect retreat for those seeking space, comfort, and style.

This package offers exceptional value with premium inclusions that make moving in effortless and enjoyable.

Package Highlights:
• Luxury European Kitchen Appliances
• Air Conditioning for Year-Round Comfort
• Stone Benchtops Throughout
• Truecore Steel Frame & Colorbond Roof
• Quality Carpet and Tiles Throughout
• 2.5kW Solar System
• 2570mm Ceiling Height

Designed for relaxed living, this home features generous open-plan spaces, seamless indoor–outdoor flow, and light-filled interiors that embrace the natural surroundings. Whether you’re upsizing, creating a family haven, or seeking a peaceful lifestyle change, The My Retreat delivers the perfect balance of luxury, practicality, and country-inspired elegance.
Stylemaster Homes
Lot 120 The Fairways, Kensington Grove QLD 4341 Available
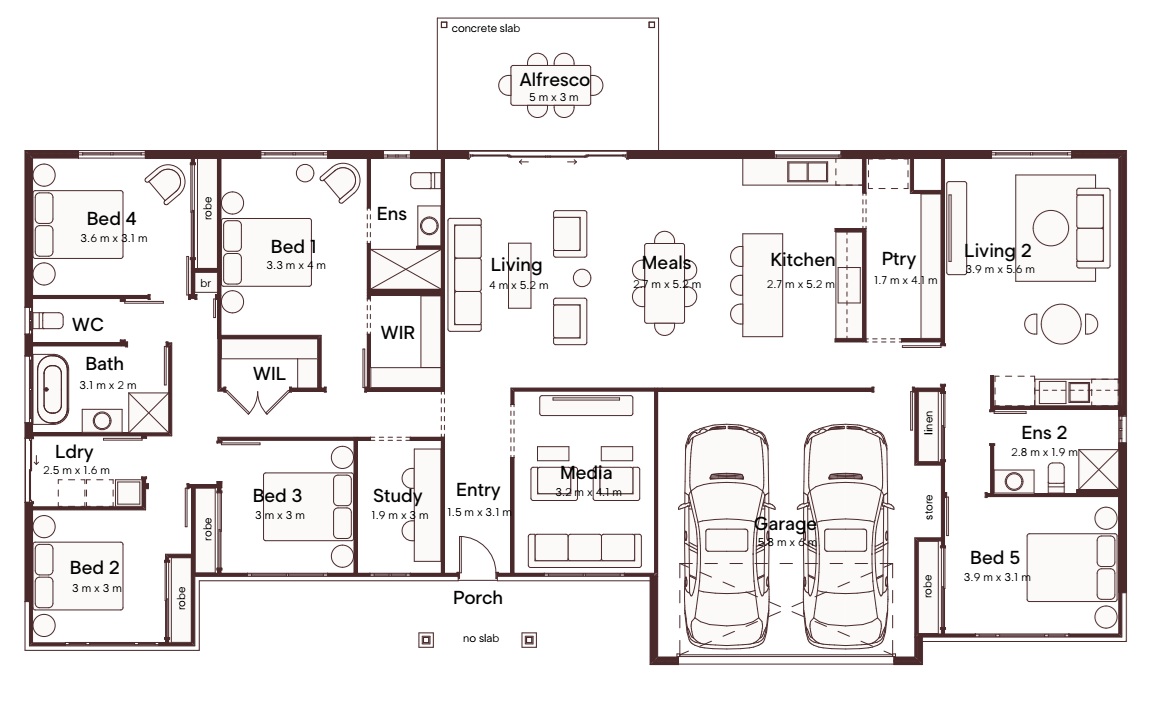
Bed  5 Bath  3 Car  2
Land Size: 3,000.00m²
Floor Area: 236m²
Price: $1,035,342

Location & Map of Kensington Grove

Loading...

Visit Display Villages near Kensington Grove QLD 4341


More House and Land Packages by Stylemaster Homes (Home Builder)

Bed  4 Bath  2 Car  2
Land Size: 568.00m²
Floor Area: 235m²
Baybreeze 25

Welcome to your future grounded in elegance.
This Premier Single Storey House & Land Package showcases our top-tier design and inclusions, offering a refined living experience for discerning homeowners who value sophistication, comfort, and effortless functionality.

Our Premiere Collection of single storey homes features pre-drawn design variations and premium inclusions, with flexibility for personal customisation—ensuring your home is uniquely yours.

Premiere Inclusions & Features
• Luxury Miele Kitchen Appliances
• Ducted Air Conditioning
• 40mm Stone to Kitchen Island
• Truecore Steel Frame & Colorbond Roof
• Carpet and Tiles throughout
• 2590mm Ceiling Height throughout
• Exposed Aggregate Driveway

This single storey design is thoughtfully crafted to suit modern family living—with generous open-plan spaces, a private master suite with ensuite and walk-in robe, and seamless indoor-outdoor flow for entertaining. Every detail reflects timeless design, comfort, and quality.


Located on the southern end of the stunning Sunshine Coast near beautiful beaches, home to award winning parks and state-of-the-art facilities, Aura is a blossoming coastal city.

The Avenues, bordered by the Northern Bells Creek Conservation Area and surrounded by native trees, offers the very best of Aura living combined with a secluded serenity and exclusivity all of its own.
Price: $1,314,367

Vacancy Rate in Kensington Grove QLD 4341

View full vacancy rate history in Kensington Grove QLD 4341 via SQM Research.


Schools in Kensington Grove QLD 4341

There are 0 schools registered in on ACARA 2025

Lot 120 The Fairways by Stylemaster Homes
Kensington Grove QLD 4341
House & Land: 5 Bed | 3 Bath | 2 Car @ $1,035,342