
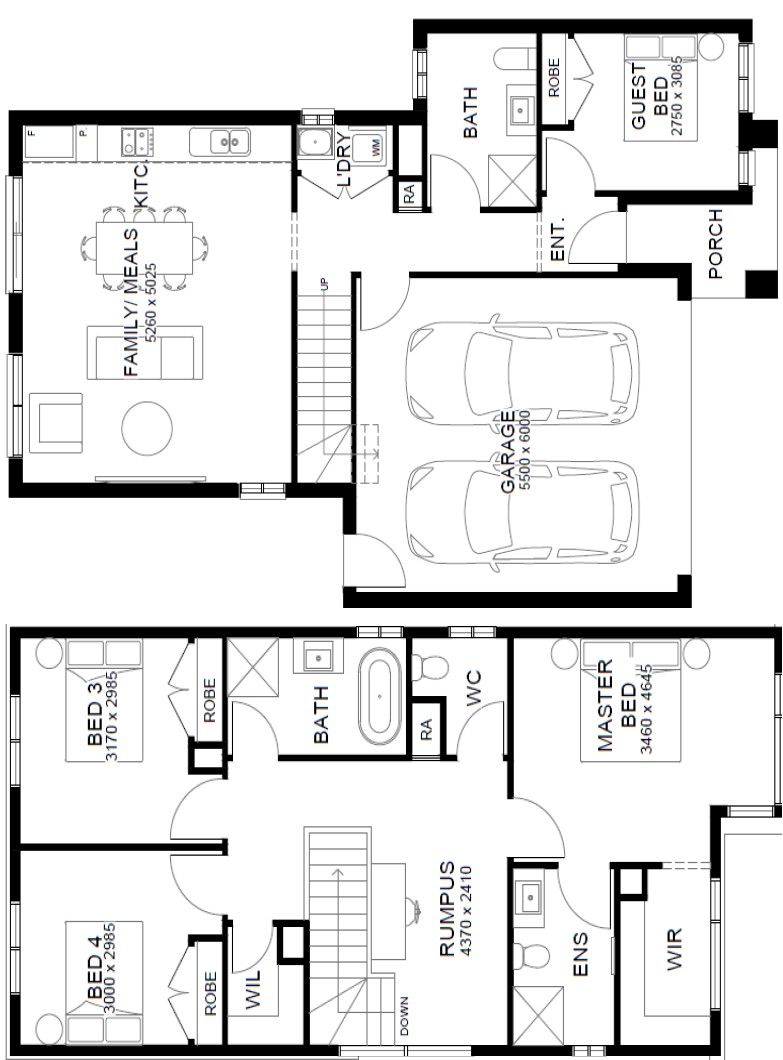
Lot 410: Maidstone 147 @ Monarch Estate - Deanside VIC 3336
Monarchās thoughtfully designed streetscapes, Flexible Home Design Guidelines, diversity of lot sizes and lot orientations make it simpler to create the home of your dreams.
Monarch does not have any Owners Corporation Fees, so you wonāt be burdened with ongoing payments for services you donāt need.
3
2
2Development Info of Monarch Estate - Deanside
This information is estimated by the OpenLot research team. Let us know here to provide up-to-date information about this development.
| Total new homes | 470 |
| Area size | 29.93 hectares |
| Growth Region | Melbourne West Growth Corridor |
| City council | Melton City Council |
| Developer | Central Equity |
| Distance to | Melbourne Airport - 13 km south-west Melbourne CBD - 24 km north-west |
Location & Map for Monarch Estate - Deanside
Visit Display Homes near Monarch Estate - Deanside
More House and Land Packages in Monarch Estate - Deanside
More House and Land Packages by Vic Turnkey Homes (Home Builder)

4
2
2This expansive family style home has a very well thought through floorplan with well sized bedrooms and multiple living spaces.
Enquire today for more info!
Land Price Trend in Deanside VIC 3336
- In Oct - Dec 24, the median price for vacant land in Deanside VIC 3336 was $352,500. *
- From Jul - Sep 19 to Oct - Dec 24, the median price for vacant land in Deanside VIC 3336 has increased 7.96%. *
- From 2017 to 2024, the median price for vacant land in Deanside VIC 3336 has decreased 0.43%. *
Vacancy Rate in Deanside VIC 3336
View full vacancy rate history in Deanside VIC 3336 via SQM Research.
Schools near Monarch Estate - Deanside
Here are 6 schools near Monarch Estate - Deanside:
Prep-6 Government Primary School
7-12 Government Secondary School
Prep-9 Government Combined School
Unknown Catholic School
7-10 Catholic Secondary School
10-12 Government Secondary School
Popular Estates near Monarch Estate - Deanside
Latest New Home Articles for You
28/Oct/2025 | OpenLot.com.au
š„ New Neighbourhoods Episode 9: Melbourne South East
The ninth and final episode of New Neighbourhoods by OpenLot.com.au takes...
27/Oct/2025 | OpenLot.com.au
2025 National ABS Housing Data Report by OpenLot.com.au.
According to the latest ABS Housing Data Report 2025 by OpenLot.com.au, c...
20/Oct/2025 | OpenLot.com.au
š„ New Neighbourhoods Episode 8: Gippsland
The eighth episode of New Neighbourhoods by OpenLot.com.au heads east to ...
13/Oct/2025 | OpenLot.com.au
š„ New Neighbourhoods Episode 7: Melbourne North West
The seventh episode of New Neighbourhoods by OpenLot.com.au heads to Sunb...
07/Oct/2025 | OpenLot.com.au
š” Suburb Profile: Denman Prospect
Denman Prospect is a suburb of approximately 107 hectares within the Aust...
07/Oct/2025 | OpenLot.com.au
š” Suburb Profile: Googong
Googong is a suburb of approximately 780 hectares within the Queanbeyan-P...
07/Oct/2025 | OpenLot.com.au
š” Suburb Profile: Central Coast
Central Coast is a regional area, located in New South Wales on the coast...
07/Oct/2025 | OpenLot.com.au
š” Suburb Profile: Toowoomba
Toowoomba is a regional city, located on the crest of the Great Dividing ...
07/Oct/2025 | OpenLot.com.au
š” Suburb Profile: Cairns (Far North Queensland Region)
Cairns is a regional city, located along the north-eastern coastline betw...






















