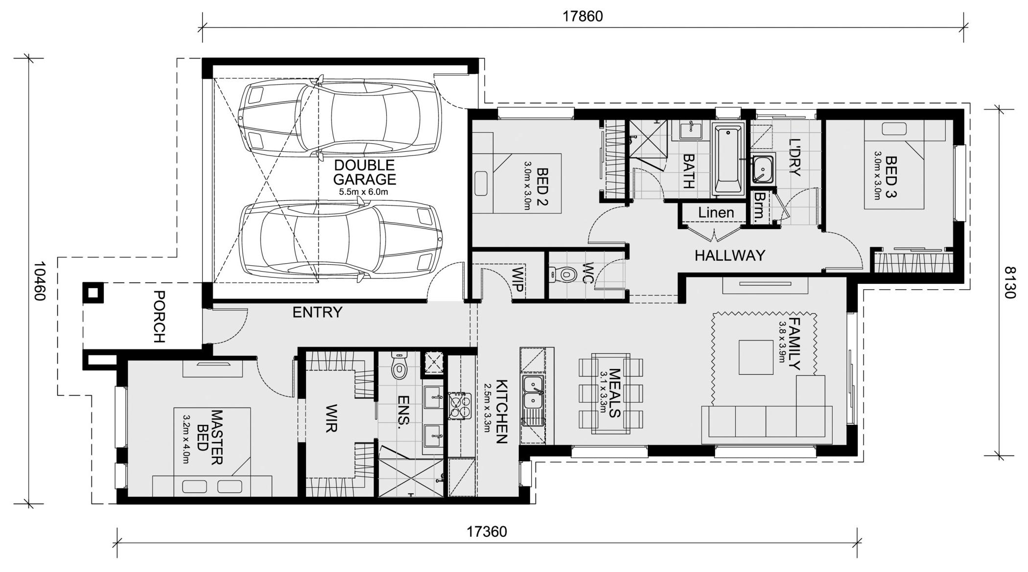
Lot 233: Darley 17 @ Samara Estate - Fraser Rise VIC 3336
* Mimosa Homes New Added Value Inclusions:
- Inclusive of site costs & connections with H1 class slab as per standard inclusions!
- 50 Year Structural Warranty!
- Quality floor coverings throughout entire home!
- Higher ceilings 2550mm to ground floor!
- Double Glazed Awning windows!
- LED Downlights to entire home!
- Vitrified Compact Surface benchtop to kitchen, bathroom &ensuite!
- 600mm S/S upright oven and cook top with S/S canopy rangehood!
- Stainless steel Dishwasher and Microwave
- 7-star energy!
- Flexible floor plans & so much more!
CALL BUILDER DIRECT!
All plans and facades are indicative only and may change. Mimosa Homes may amend plans, specifications, and prices without notice. Package prices are based on a standard facade, standard inclusions, and suitable land availability, excluding developer/estate requirements. Facade and inclusion images may show non standard items not included in the price. Dimensions are approximate. Landscaping, fencing, decking, planter boxes, driveways, and paths are excluded unless specified.
3
2
2
Development Info of Samara Estate - Fraser Rise
This information is estimated by the OpenLot research team. Let us know here to provide up-to-date information about this development.
| Total new homes | 175 |
| Area size | 12.00 hectares |
| Growth Region | Melbourne West Growth Corridor |
| City council | Melton City Council |
| Developer | NB EYE Land, Land x Wise |
| Project marketer | Sales x Wise |
| Creative agency | Cassette |
| Distance to | Melbourne Airport - 13 km west Melbourne CBD - 26 km north-west |
Location & Map for Samara Estate - Fraser Rise
Visit Display Homes near Samara Estate - Fraser Rise
More House and Land Packages by Mimosa Homes (Home Builder)
4
2
2
- 50 Year Structural Warranty
- Inclusive of site costs & connections with H1 class slab as per standard inclusions
- Quality floor coverings throughout entire home
- Higher ceilings 2550mm to ground floor
- Double Glazed Awning windows
- LED Downlights to entire home
- Fibre Optic Provision
- Vitrified Compact Surface benchtop to kitchen, bathroom &ensuite
- 900mm S/S upright oven and cook top with S/S canopy rangehood
- Stainless steel Dishwasher and Microwave with trim kit
- 7 star energy
- Flexible floor plans & so much more
4
2
2
* Mimosa Homes New Added Value Inclusions:
- 50 Year Structural Warranty!
- Inclusive of site costs & connecons with H1 class slab as per standard inclusions!
- Quality floor coverings throughout enre home!
- Higher ceilings 2550mm to ground floor!
- Double Glazed Awning windows!
- LED Downlights to enre home!
- Fibre Opc Provision!
- Vitrified Compact Surface benchtop to kitchen, bathroom & ensuite!
- 900mm S/S upright oven and cook top with S/S canopy rangehood!
- Stainless steel Dishwasher and Microwave with trim kit!
- 7 star energy!
- Flexible floor plans & so much more!
CALL BUILDER DIRECT!
All plans and facades are indicave only and may change. Mimosa
Homes may amend plans, specificaons, and prices without
noce. Package prices are based on a standard facade, standard
inclusions, and suitable land availability, excluding
developer/estate requirements. Facade and inclusion images may
show non standard items not included in the price. Dimensions
are approximate. Landscaping, fencing, decking, planter boxes,
driveways, and paths are excluded unless specified
Land Price Trend in Fraser Rise VIC 3336
- In Oct - Dec 24, the median price for vacant land in Fraser Rise VIC 3336 was $370,000. *
- From Oct - Dec 17 to Oct - Dec 24, the median price for vacant land in Fraser Rise VIC 3336 has increased 21.31%. *
- From 2011 to 2024, the median price for vacant land in Fraser Rise VIC 3336 has increased 45.92%. *
Vacancy Rate in Fraser Rise VIC 3336
View full vacancy rate history in Fraser Rise VIC 3336 via SQM Research.
Schools near Samara Estate - Fraser Rise
Here are 6 schools near Samara Estate - Fraser Rise:
Prep-6 Government Primary School
7-12 Government Secondary School
Prep-6 Government Primary School
Prep-6 Catholic Primary School
Prep-12 Independent Combined School
Unknown Catholic School
Popular Estates near Samara Estate - Fraser Rise
Latest New Home Articles for You
16/Jan/2026 | OpenLot.com.au
South Australia Top 30 Most Searched Housing Developments (December 2025)
15/Jan/2026 | OpenLot.com.au
Queensland: Top 30 Most Searched Housing Developments (December 2025)
If you’ve been tracking housing demand across Queensland, December 2025 p...
14/Jan/2026 | OpenLot.com.au
Victoria: Top 30 Most Searched Housing Developments (December 2025)
If you’ve been exploring housing opportunities in Victoria, December 2025...
14/Jan/2026 | OpenLot.com.au
Display Homes at Apsley Estate: A Masterplanned Community in Mandogalup
Apsley is a bold, 1,800-lot masterplanned community just 25 minutes south...
13/Jan/2026 | OpenLot.com.au
Western Australia: Top 30 Most Searched Housing Developments (December 2025)
If you’ve been keeping an eye on housing demand across Western Australia,...
12/Jan/2026 | OpenLot.com.au
New South Wales: Top 30 Most Searched Housing Developments (December 2025)
If you’ve been considering making a move in New South Wales, December 202...
07/Jan/2026 | OpenLot.com.au
🏡 Top 30 Most Searched Estates by State - December
06/Jan/2026 | OpenLot.com.au
Display Homes Near Me (WA): Your Complete Guide to Display Villages Across Western Australia
Finding the right display home in Western Australia has never been easier...
30/Dec/2025 | OpenLot.com.au
Display Homes Near Me (QLD): Your Complete Guide to Display Villages Across Queensland
Finding the right display home in Queensland has never been easier, with ...