Lot 6 Samford Rise by Stylemaster Homes - Samford Valley

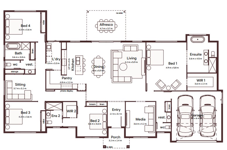
Maleny 344

Welcome to your future grounded in elegance.
This Premier Single Storey House & Land Package showcases our top-tier design and inclusions, offering a refined living experience for discerning homeowners who value sophistication, comfort, and effortless functionality.

Our Premiere Collection of single storey homes features pre-drawn design variations and premium inclusions, with flexibility for personal customisation—ensuring your home is uniquely yours.

Premiere Inclusions & Features
• Luxury Miele Kitchen Appliances
• Ducted Air Conditioning
• 40mm Stone to Kitchen Island
• Truecore Steel Frame & Colorbond Roof
• Carpet and Tiles throughout
• 2590mm Ceiling Height throughout
• Exposed Aggregate Driveway

This single storey design is thoughtfully crafted to suit modern family living—with generous open-plan spaces, a private master suite with ensuite and walk-in robe, and seamless indoor-outdoor flow for entertaining. Every detail reflects timeless design, comfort, and quality.


In the scenic hills of Samford Valley, the prestigious community of Samford Rise offers peaceful acreage living in one of Brisbane’s most sought-after locations and only a 15 to 20 minute walk to the heart of Samford Village.

Spectacular sweeping views and adjoining 250ha Brian Burke Reserve Samford Rise is a boutique new development set in a prime Samford Valley position, surrounded by luxury homes, the 250ha Brian Burke Reserve, across the road from the South Pine River and close to all essential amenities including shops, schools and a sporting facilities.
Stylemaster Homes
Lot 6 Samford Rise, Samford Valley QLD 4520 Available
Bed  4 Bath  2 Car  2
Land Size: 6,000.00m²
Floor Area: 344m²
Price: $2,165,525

Location & Map of Samford Valley

Loading...

Nearby Display Homes from Stylemaster Homes (Home Builder)


Visit Display Villages near Samford Valley QLD 4520


More House and Land Packages by Stylemaster Homes (Home Builder)

Bed  4 Bath  2 Car  2
Land Size: 450.00m²
Floor Area: 194m²
My Haven 194

Explore. Dream. Discover.
Stylemaster’s My Dream Collection of clever home designs and facades has been created to help Queenslanders turn today’s dream into tomorrow’s home. Featuring the inclusions and features you love with a focus on affordability, the Stylemaster new home experience has never been more accessible. With My Dream, you can start building the life you’ve always imagined.

Discover your dream home with this beautifully designed House and Land Package from our exclusive My Dream Collection. Thoughtfully crafted for modern living, this home combines elegant design, quality finishes, and everyday functionality – the perfect balance of luxury and practicality.

This package offers exceptional value with premium inclusions that make moving in effortless and enjoyable.

Package Highlights:

• Luxury European Kitchen Appliances
• Air Conditioning for Year-Round Comfort
• Stone Benchtops Throughout
• Truecore Steel Frame & Colorbond Roof
• Quality Carpet and Tiles Throughout
• 2.5kW Solar System
• 2570mm Ceiling Height to Ground Floor

Designed for everyday living, this home offers open-plan spaces, light-filled interiors, and a focus on low-maintenance living. Whether you’re a first home buyer, growing family, or savvy investor, this package delivers style, quality, and value in one complete offering.
Price: $938,064
Bed  4 Bath  2 Car  1
Land Size: 300.00m²
Floor Area: 151m²
My Oasis 151

Explore. Dream. Discover.
Stylemaster’s My Dream Collection of clever home designs and facades has been created to help Queenslanders turn today’s dream into tomorrow’s home. Featuring the inclusions and features you love with a focus on affordability, the Stylemaster new home experience has never been more accessible. With My Dream, you can start building the life you’ve always imagined.

Discover your dream home with this beautifully designed House and Land Package from our exclusive My Dream Collection. Thoughtfully crafted for modern living, this home combines elegant design, quality finishes, and everyday functionality – the perfect balance of luxury and practicality.

This package offers exceptional value with premium inclusions that make moving in effortless and enjoyable.

Package Highlights:

• Luxury European Kitchen Appliances
• Air Conditioning for Year-Round Comfort
• Stone Benchtops Throughout
• Truecore Steel Frame & Colorbond Roof
• Quality Carpet and Tiles Throughout
• 2.5kW Solar System
• 2570mm Ceiling Height to Ground Floor

Designed for everyday living, this home offers open-plan spaces, light-filled interiors, and a focus on low-maintenance living. Whether you’re a first home buyer, growing family, or savvy investor, this package delivers style, quality, and value in one complete offering.
Price: $858,644

Vacancy Rate in Samford Valley QLD 4520

View full vacancy rate history in Samford Valley QLD 4520 via SQM Research.


Schools in Samford Valley QLD 4520

There are 0 schools registered in on ACARA 2024

Lot 6 Samford Rise by Stylemaster Homes
Samford Valley QLD 4520
House & Land: 4 Bed | 2 Bath | 2 Car @ $2,165,525