Lot 3001 Ashbury Estate by Sherridon Homes - Armstrong Creek

Unlock Your Dream Home When You Build With Sherridon Homes In This Prime Location!

- Site Costs Allowance Including Rock Removal
- 7-star energy rated homes
- Double-glazed awning windows and sliding doors to single-storey homes (where required)
- Double-glazed awning windows and sliding doors to double-storey homes throughout
- 40mm edge category 1 stone bench top
- 1500mm freestanding bath
- Brickwork above all elevations including windows, external doors and over garage with face brick.
- Evaporative cooling throughout
- 900mm appliances
- Tiled shower bases
- Colour on concrete driveway (up to 35m2)
- Overhead cupboards to kitchen

*Pricing Is Based On Developer Engineering Plans, Estate Guidelines And Plan Of Subdivision. Land Availability And Pricing Supplied By The Developer Are Subject To Change Without Notice. All House And Land Packages Are Subject To Developer Approval. Price Does Not Include Any Stamp Duty, Government, Legal Or Bank Charges. *Total Package Price Minus $10K FHOG (Subject To SRO Eligibility) The First Home Owners Grant Is A Government Incentive And Any Claims Will Be Lodged Externally. Photographs In This Flyer May Depict Fixtures, Finishes And Features Either Not Supplied Or Are Upgrade Options By Sherridon. All Floorplan, Facade Images And Photographs Have Been Used For Illustrative Purposes Only (Refer To Contract Documentation For Full Details) And May Not Represent The Final Product As Shown. Please Refer To Your Friendly New Home Consultant For An Exact List Of Inclusions With Detail. Sherridon Homes Reserves The Right To Amend Specification And Price Without Notice. VIC Builder's Licence: CDB-U 50039v
Sherridon Homes
Lot 3001 Ashbury Estate, Armstrong Creek VIC 3217 Available
Bed  4 Bath  2 Car  2
Land Size: 448.00m²
Floor Area: 38.79sq
Price: $932,060

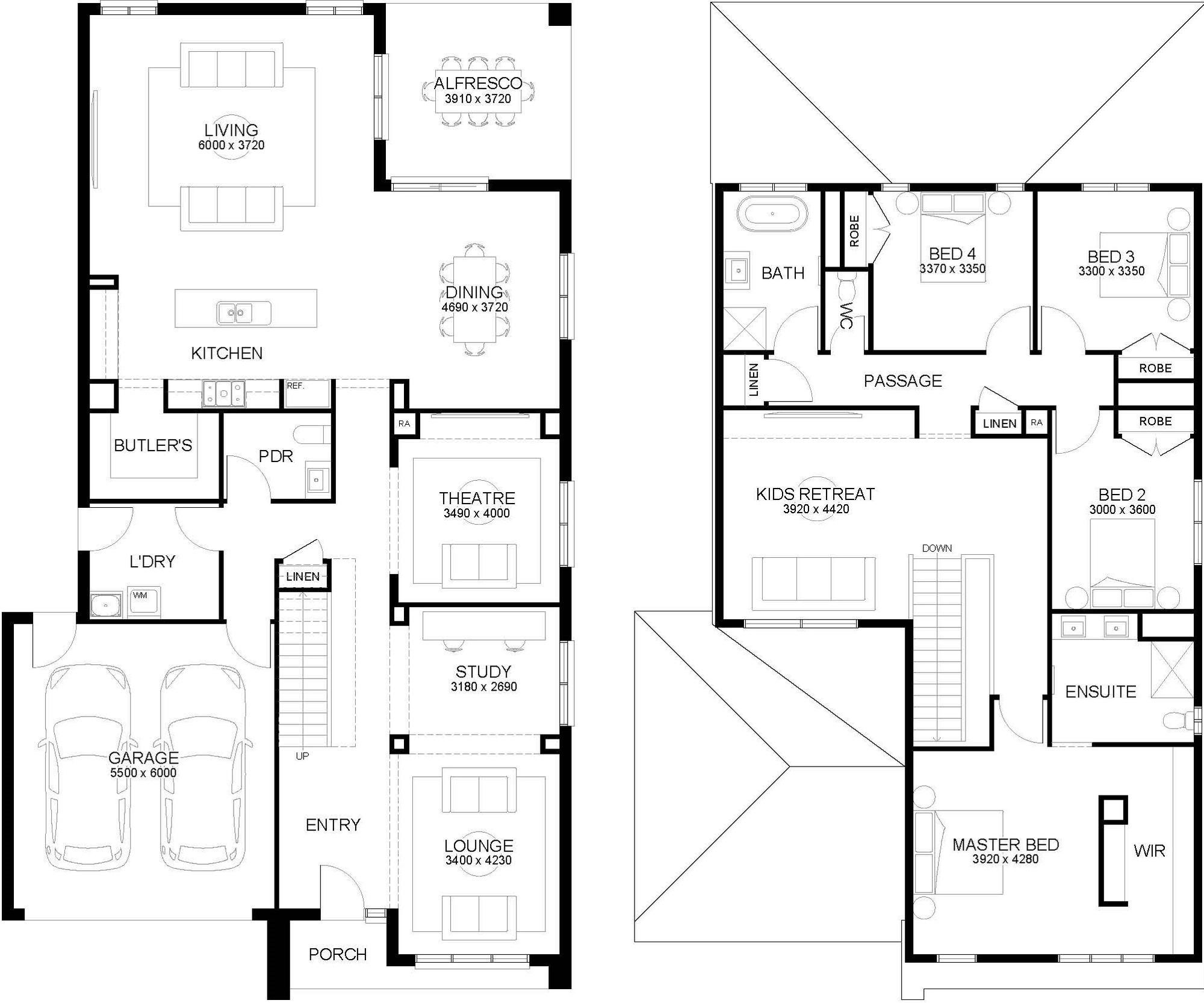
Floor-plan for Lot 3001: by Sherridon Homes


Location & Map of Armstrong Creek

Loading...

Nearby Display Homes from Sherridon Homes (Home Builder)


Visit Display Villages near Armstrong Creek VIC 3217


More House and Land Packages by Sherridon Homes (Home Builder)

Bed  4 Bath  2 Car  2
Land Size: 400.00m²
Frontage: 12.5m
Depth: 32m
Floor Area: 22.51sq
Unlock Your Dream Home When You Build With Sherridon Homes In This Prime Location!
- Fixed Site Costs Including Rock Removal
- 7-star energy rated home
- Double-glazed awning windows and sliding doors to single-storey homes (where required)
- Double-glazed awning windows and sliding doors to double-storey homes throughout
- Colour-through concrete driveway (up to 36m2)
- Letterbox
- 3.5kw split system to living area
- 2590mm high ceilings throughout (ground floor of double storey homes only)
- Block out roller blinds throughout including 2 standard sliding doors
- Omega 60cm dishwasher ODW700X
- 20mm Caesarstone benchtop throughout (kitchen, bathroom & ensuite only)
- Downlights throughout


*Pricing Is Based On Developer Engineering Plans, Estate Guidelines And Plan Of Subdivision. Land Availability And Pricing Supplied By The Developer Are Subject To Change Without Notice. All House And Land Packages Are Subject To Developer Approval. Price Does Not Include Any Stamp Duty, Government, Legal Or Bank Charges. *Total Package Price Minus $10K FHOG (Subject To SRO Eligibility) The First Home Owners Grant Is A Government Incentive And Any Claims Will Be Lodged Externally. Photographs In This Flyer May Depict Fixtures, Finishes And Features Either Not Supplied Or Are Upgrade Options By Sherridon. All Floorplan, Facade Images And Photographs Have Been Used For Illustrative Purposes Only (Refer To Contract Documentation For Full Details) And May Not Represent The Final Product As Shown. Please Refer To Your Friendly New Home Consultant For An Exact List Of Inclusions With Detail. Sherridon Homes Reserves The Right To Amend Specification And Price Without Notice. VIC Builder's Licence: CDB-U 50039v
Price: $736,830
Bed  4 Bath  2 Car  2
Land Size: 495.00m²
Frontage: 12.5m
Depth: 28m
Floor Area: 20.99sq
Unlock Your Dream Home When You Build With Sherridon Homes In This Prime Location!
- Fixed Site Costs Including Rock Removal
- 7-star energy rated home
- Double-glazed awning windows and sliding doors to single-storey homes (where required)
- Double-glazed awning windows and sliding doors to double-storey homes throughout
- Colour-through concrete driveway (up to 36m2)
- Letterbox
- 3.5kw split system to living area
- 2590mm high ceilings throughout (ground floor of double storey homes only)
- Block out roller blinds throughout including 2 standard sliding doors
- Omega 60cm dishwasher ODW700X
- 20mm Caesarstone benchtop throughout (kitchen, bathroom & ensuite only)
- Downlights throughout


*Pricing Is Based On Developer Engineering Plans, Estate Guidelines And Plan Of Subdivision. Land Availability And Pricing Supplied By The Developer Are Subject To Change Without Notice. All House And Land Packages Are Subject To Developer Approval. Price Does Not Include Any Stamp Duty, Government, Legal Or Bank Charges. *Total Package Price Minus $10K FHOG (Subject To SRO Eligibility) The First Home Owners Grant Is A Government Incentive And Any Claims Will Be Lodged Externally. Photographs In This Flyer May Depict Fixtures, Finishes And Features Either Not Supplied Or Are Upgrade Options By Sherridon. All Floorplan, Facade Images And Photographs Have Been Used For Illustrative Purposes Only (Refer To Contract Documentation For Full Details) And May Not Represent The Final Product As Shown. Please Refer To Your Friendly New Home Consultant For An Exact List Of Inclusions With Detail. Sherridon Homes Reserves The Right To Amend Specification And Price Without Notice. VIC Builder's Licence: CDB-U 50039v
Price: $757,740
Bed  4 Bath  2 Car  2
Land Size: 350.00m²
Frontage: 12.5m
Depth: 28m
Floor Area: 22.33sq
Unlock Your Dream Home When You Build With Sherridon Homes In This Prime Location!
- Fixed Site Costs Including Rock Removal
- 7-star energy rated homes
- Double-glazed awning windows and sliding doors to single-storey homes (where required)
- Double-glazed awning windows and sliding doors to double-storey homes throughout
- 40mm edge category 1 stone bench top
- 1500mm freestanding bath
- Brickwork above all elevations including windows, external doors and over garage with face brick.
- Evaporative cooling throughout
- 900mm appliances
- Tiled shower bases
- Colour on concrete driveway (up to 35m2)
- Overhead cupboards to kitchen


*Pricing Is Based On Developer Engineering Plans, Estate Guidelines And Plan Of Subdivision. Land Availability And Pricing Supplied By The Developer Are Subject To Change Without Notice. All House And Land Packages Are Subject To Developer Approval. Price Does Not Include Any Stamp Duty, Government, Legal Or Bank Charges. *Total Package Price Minus $10K FHOG (Subject To SRO Eligibility) The First Home Owners Grant Is A Government Incentive And Any Claims Will Be Lodged Externally. Photographs In This Flyer May Depict Fixtures, Finishes And Features Either Not Supplied Or Are Upgrade Options By Sherridon. All Floorplan, Facade Images And Photographs Have Been Used For Illustrative Purposes Only (Refer To Contract Documentation For Full Details) And May Not Represent The Final Product As Shown. Please Refer To Your Friendly New Home Consultant For An Exact List Of Inclusions With Detail. Sherridon Homes Reserves The Right To Amend Specification And Price Without Notice. VIC Builder's Licence: CDB-U 50039v
Price: $664,240

Land Price Trend in Armstrong Creek VIC 3217

  • In Oct - Dec 24, the median price for vacant land in Armstrong Creek VIC 3217 was $315,000. *
  • From Oct - Dec 17 to Oct - Dec 24, the median price for vacant land in Armstrong Creek VIC 3217 has increased 51.81%. *
  • From 2010 to 2024, the median price for vacant land in Armstrong Creek VIC 3217 has increased 100.28%. *
* Price data comes from Valuer-General Victoria on 05/06/25

Vacancy Rate in Armstrong Creek VIC 3217

View full vacancy rate history in Armstrong Creek VIC 3217 via SQM Research.


Schools in Armstrong Creek VIC 3217

There are 4 schools registered in on ACARA 2024

Lot 3001 Ashbury Estate by Sherridon Homes
Ashbury Estate, Armstrong Creek VIC 3217
House & Land: 4 Bed | 2 Bath | 2 Car @ $932,060