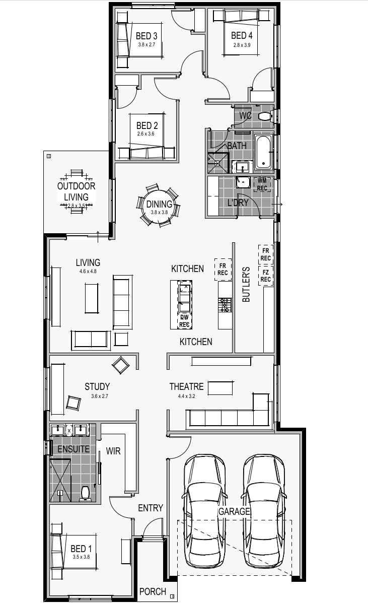
Lot 3220: Alabama 26 @ Ashbury Estate - Armstrong Creek VIC 3217
- Huge 1200mm Wide Island Bench with breakfast bar
- Stone Benchtops
- European High Gloss Cabinetry
- Lift up overhead Cupboards
- Extensive Drawers
- 900mm Westinghouse Freestanding Stove
- Integrated Electrolux Rangehood
- Microwave recess with pot drawer
- Category 1 façade
- Timber laminate flooring & loop pile carpet
- Stone benchtops to kitchen, ensuite and bathroom
- European Design flickmixer tapware
- Rain head showers
- Council and Developer Requirements
- Tiled shower bases
- Double Lock Up Garage with remote control door
- Fixed site costs
- 7 Star Energy Rating
- Solar System
- Double glazing
4
2
2
Development Info of Ashbury Estate - Armstrong Creek
This information is estimated by the OpenLot research team. Let us know here to provide up-to-date information about this development.
| Total new homes | 1,400 |
| Area size | 107.00 hectares |
| Growth Region | Greater Geelong Growth Areas |
| City council | City Of Greater Geelong |
| Developer | Dennis Family Corporation |
| Project marketer | Maxwell Collins Real Estate |
| Distance to | Geelong CBD - 9 km south Melbourne CBD - 70 km south-west |
Location & Map for Ashbury Estate - Armstrong Creek
Visit Display Homes near Ashbury Estate - Armstrong Creek
More House and Land Packages in Ashbury Estate - Armstrong Creek
More House and Land Packages by HomeGroup (Home Builder)
Land Price Trend in Armstrong Creek VIC 3217
- In Oct - Dec 24, the median price for vacant land in Armstrong Creek VIC 3217 was $315,000. *
- From Oct - Dec 17 to Oct - Dec 24, the median price for vacant land in Armstrong Creek VIC 3217 has increased 51.81%. *
- From 2010 to 2024, the median price for vacant land in Armstrong Creek VIC 3217 has increased 100.28%. *
Vacancy Rate in Armstrong Creek VIC 3217
View full vacancy rate history in Armstrong Creek VIC 3217 via SQM Research.
Schools near Ashbury Estate - Armstrong Creek
Here are 6 schools near Ashbury Estate - Armstrong Creek:
7-11 Catholic Secondary School
Prep-12 Independent Combined School - School Head Campus
7-12 Government Secondary School
U, Prep-6 Government Combined School - School Head Campus
Prep-6 Government Primary School
Prep-6 Catholic Primary School
Popular Estates near Ashbury Estate - Armstrong Creek
Latest New Home Articles for You
27/Jan/2026 | OpenLot.com.au
Display Homes at Stockland Wildflower Estate: A Smart Community in Piara Waters
Welcome to Wildflower, a vibrant new neighbourhood nestled in the heart o...
16/Jan/2026 | OpenLot.com.au
South Australia Top 30 Most Searched Housing Developments (December 2025)
15/Jan/2026 | OpenLot.com.au
Queensland: Top 30 Most Searched Housing Developments (December 2025)
If you’ve been tracking housing demand across Queensland, December 2025 p...
14/Jan/2026 | OpenLot.com.au
Victoria: Top 30 Most Searched Housing Developments (December 2025)
If you’ve been exploring housing opportunities in Victoria, December 2025...
14/Jan/2026 | OpenLot.com.au
Display Homes at Apsley Estate: A Masterplanned Community in Mandogalup
Apsley is a bold, 1,800-lot masterplanned community just 25 minutes south...
13/Jan/2026 | OpenLot.com.au
Western Australia: Top 30 Most Searched Housing Developments (December 2025)
If you’ve been keeping an eye on housing demand across Western Australia,...
12/Jan/2026 | OpenLot.com.au
New South Wales: Top 30 Most Searched Housing Developments (December 2025)
If you’ve been considering making a move in New South Wales, December 202...
07/Jan/2026 | OpenLot.com.au
🏡 Top 30 Most Searched Estates by State - December
06/Jan/2026 | OpenLot.com.au
Display Homes Near Me (WA): Your Complete Guide to Display Villages Across Western Australia
Finding the right display home in Western Australia has never been easier...