Lot 2404 Aura Estate by Simonds Homes - Banya

A house design with harmonious flow, blending comfort and efficiency.

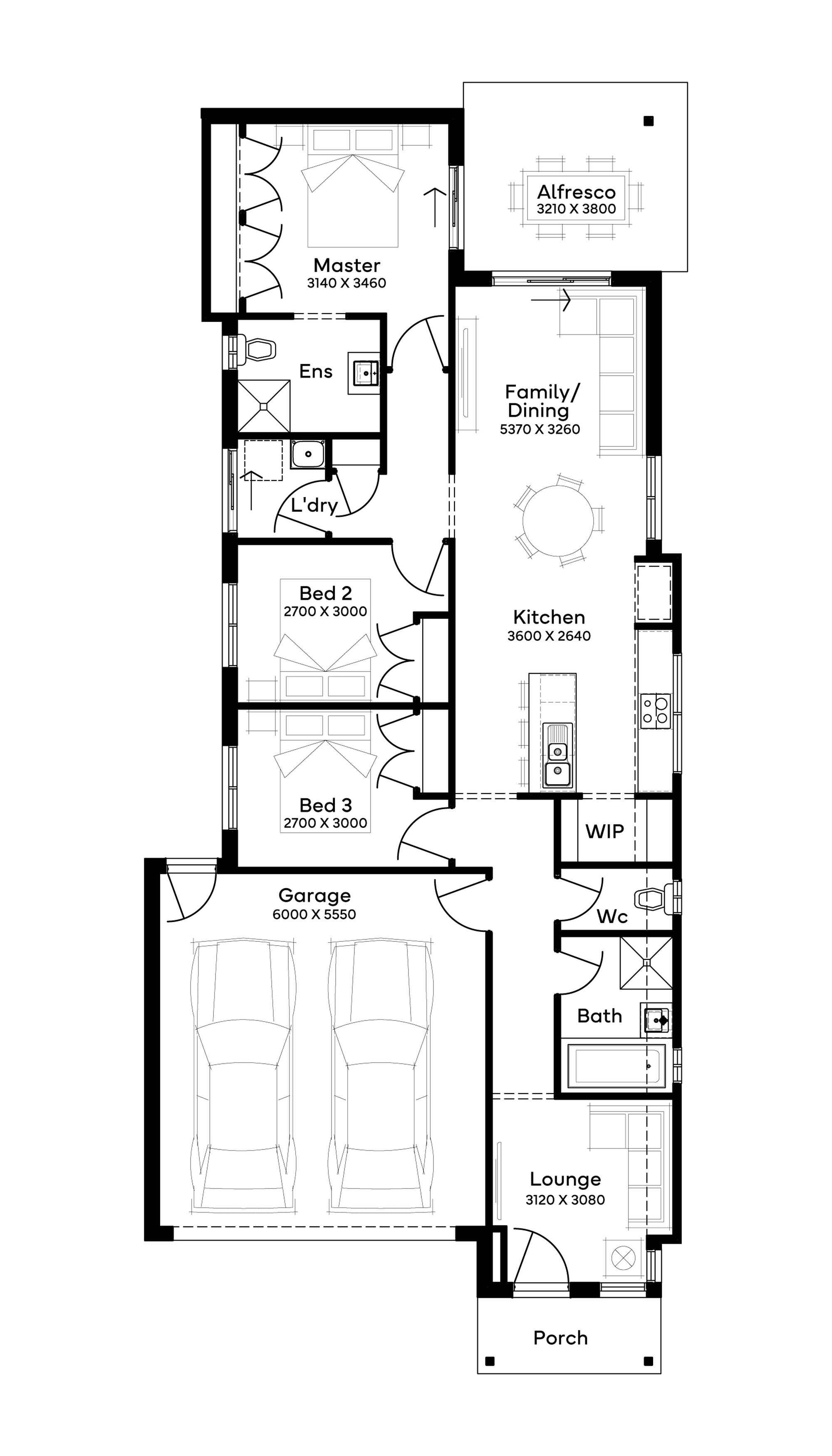
The Bremer 18 boasts a floor plan with 3 bedrooms and 2 bathrooms, offering an intimate embrace of family living. The heart of the home unfolds in an open-plan kitchen and dining area, leading to an alfresco for seamless indoor-outdoor enjoyment. The master suite, complete with an ensuite, promises a private haven, while additional bedrooms are thoughtfully placed for tranquillity. This single-storey design efficiently uses space, ensuring every part of the home is a testament to comfortable living.
Simonds Homes
Lot 2404 Aura Estate, Banya QLD 4551 Available
Bed  3 Bath  2 Car  2
Land Size: 250.00m²
Frontage: 12.5m
Depth: 28m
Floor Area: 17.84sq
Price: $882,794

Floor-plan for Lot 2404: by Simonds Homes


Location & Map of Banya

Loading...

Visit Display Villages near Banya QLD 4551


More House and Land Packages by Simonds Homes (Home Builder)

Bed  4 Bath  2 Car  2
Land Size: 475.00m²
Frontage: 15m
Depth: 32m
Floor Area: 28.82sq
The Ekati blends flexible layouts and smart living features into one stylish family home.
Flexible Living with Lasting Appeal
The Ekati is all about intelligent design and timeless charm. With four spacious bedrooms and an adaptable layout that puts comfort first, it suits both growing families and empty nesters alike. Whether you want a front lounge for entertaining or a peaceful master suite up front, the Ekati offers flexibility without compromise.

Simonds Fixed Price Home & Land Package

Simonds have been Building Homes Since 1949, and every year, help thousands of Australian's realise their dream of owning a brand new home.

In choosing a builder, we believe that each buyer is looking for the best quality, the best service, and the best price.
Whilst it is impossible to have all three, Simonds have built our Fixed Price reputation on great quality and service, for what is often the largest investment in our clients lives.
As a National Builder with large buying power, our homes are very competitively priced, and most importantly, fantastic value for money.

With the transparency of an itemised quotation, a refundable initial deposit, and a Fixed Price contract at the end of the journey, why not enquire with one of the Simonds Sales team today!

This Attractive House and Land Package Includes:

Fixed price Site Costs
Developer & council requirements
Photovoltaic panels with inverter
Feature front entry door
Colorbond Sectional garage door & remote controls
Floor coverings to entire house
20mm Stone benchtops to kitchen
Quality stainless steel cooktop & oven
Towel Rails & Toilet Roll Holders
800mm Laundry Cabinet
Ducted Heating
Plus much more!


All Fixed Price Home and Land packages are subject to Developer and Council approval and is based on Simonds standard floor plan with preferred siting (without alterations). Package Price does not include stamp duty, government, legal or bank charges. Community Infrastructure Levy and Asset Protection Permit are not included in pricing and is to be arranged by the client directly with the Developer (if applicable). Any alterations may incur additional charges. Confirm land price and availability prior to purchase. Simonds reserves the right to withdraw or amend pricing, inclusions and promotion at any time without notice. Please refer to the terms and conditions at www.simonds.com.au/terms-and-conditions. This package applies to VIC - Aspirations range only. Please speak with your sales consultant for further details. Pricing is current at 20/03/2026.

Facade & Internal images are taken from a similar Simonds display home and are for illustration purposes only. Please talk to your sales consultant for more details
Price: $877,191

Vacancy Rate in Banya QLD 4551

View full vacancy rate history in Banya QLD 4551 via SQM Research.


Schools in Banya QLD 4551

There are 0 schools registered in on ACARA 2025

Lot 2404 Aura Estate by Simonds Homes
Aura Estate, Banya QLD 4551
House & Land: 3 Bed | 2 Bath | 2 Car @ $882,794