Broadstead Estate - Kilmore Logo

Lot 235: Amira 28 @ Broadstead Estate - Kilmore VIC 3764

Amira

From the moment you step inside, you can’t help but be impressed by the sleek modern design and wide-open, light-filled spaces of our 7 -Star energy efficient home.

We build beautiful and sustainable designed homes without the architect-designed price, our package includes:

Inclusions:
• Lifetime Structural guarantee
• 7-star energy rating
• Double glazed windows & sliding doors
• PV solar system
• 2700mm Ceilings
• Floor Coverings Throughout
• Ducted Heating & Evaporative cooling
• 20mm zenith stone benchtops to kitchen
• 20mm zenith stone benchtops to bathrooms
• BAL 12.5 bushfire requirements
• 900mm Kitchen Appliances
• Dishwasher
• Exposed aggregate driveway (Up to 35m2)
Metricon Homes
Stage 02: Lot 235 Westringia Approach: Amira 28 Available
Bed  4 Bath  2 Car  2
Home Design: Amira 28
Land Size: 666.00m²
Floor Area: 28sq
Price: $789,400

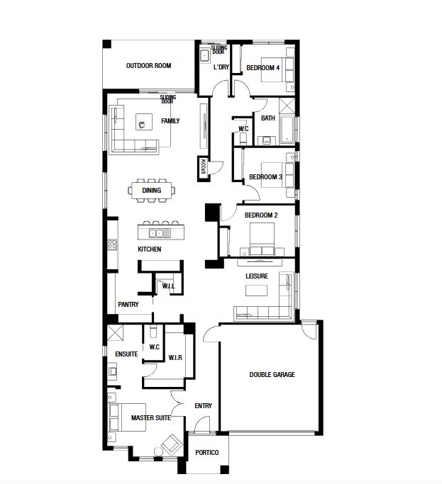
Floor-plan for Lot 235: Amira 28


Development Info of Broadstead Estate - Kilmore

Total new homes 500
Area size 60.00 hectares
Growth Region Melbourne North Growth Corridor
City council Mitchell Shire Council
Developer Jinding
Distance to Melbourne Airport - 41 km north Melbourne CBD - 55 km north

Location & Map for Broadstead Estate - Kilmore

Loading...

Nearby Display Homes from Metricon Homes (Home Builder)


Visit Display Homes near Broadstead Estate - Kilmore


More House and Land Packages in Broadstead Estate - Kilmore


More House and Land Packages by Metricon Homes (Home Builder)

Bed  4 Bath  2 Car  2
Land Size: 851.00m²
Floor Area: 270sq
More Home for Less
KALARNEY 29A, WHITEHAVEN FAƇADE, LOT 5 ROSEWOOD COURT, RUTHERGLEN, BARKLY PARK ESTATE

If you're an eligible first home buyer, then you can apply for the First Home Owners' Grant, which is $10,000<, to this home and land package. At Metricon, we've helped thousands of first home buyers realise their new home dreams, and we can help you too.
At Metricon, we understand that great design is the sum of many parts, and for over 47 years, our mission has been to create homes where you truly love to live.
From the moment you step inside, you can't help but be impressed by the sleek modern design and wide-open, light-filled spaces of our 7 -Star energy efficient home.

This home delivers the entertainers lifestyle you’ve been dreaming of.

Perfect for any wide open space – a corner block, a hilltop or a wide street-front. If you’ve got the right land, this is the home for you. Come inside and discover the many ways this home delivers practical, affordable and exciting family living.

Want to get a feel for this floorplan in person? This design is on display at Leneva, Winter Valley or has a virtual tour available, head to metricon.com.au/display-homes to find out more.

We build beautiful and sustainable designed homes without the architect-designed price, our package includes:
• Lifetime Structural guarantee
• 7-star energy rating
• Double glazed windows & sliding doors
• PV solar system
• 2700mm Ceilings
• Floor Coverings Throughout
• Heating & Cooling
• 20mm zenith stone benchtops to kitchen
• 20mm zenith stone benchtops to bathrooms
• BAL 12.5 bushfire requirements
• Large Kitchen Appliances
• Dishwasher
• Driveway (Up to 35m2)

At Metricon, we aim to provide you with innovative yet practical home designs that are designed to grow with your family's requirements well into the future. Since 1976, our design philosophy has remained the same - to design stunning homes where you'd love to live and which celebrate the diversity of Australian family life.

*Price excludes upgrade items above standard specification such as feature render and bricks, front entrance timber decking, front entry door, brick infills above garage, external lighting, fencing, concrete paths and driveway. Facade Image may also contain items not supplied by Metricon, namely landscaping and planter boxes. Aluminium double glazed windows are subject to specific home design, refer to plans.
Floorplan may not reflect developer guidelines and depicts the base Facade.
Package is correct at time of publication, availability, images, inclusions and prices are subject to change due to circumstances that may affect the price as set out in the building contract (including the land registration date not being met), changes in local, state or federal government laws and developer approval.Land is supplied by developer,land prices and availability are subject to change without notice.Advertised Package Price is based on Metricon's Freedom standard inclusions, any additional inclusions listed, Metricon's preferred siting of the home and the expected land titling date as notified by the developer and is subject to Metricon's price hold expiry date by which the owner must include essential information to Metricon to commence construction, including land title. Package price excludes customer account opening fees, stamp duty on land, legal fees and conveyancing costs including titles and property report. Typical site costs allowance is included in the price, additional site costs may apply if site survey and soil tests indicate footings and site works different to those expected for the location. Additional costs may incur if there are bushfire, wind rating or acoustic requirements. For more information on pricing and inclusions please speak with a Metricon New Home Advisor.
Newfield Real Estate Pty Ltd ACN 159 312 722, Licence number 028051L. VIC Builder's Licence: CDB-U 52967
#For details on our Lifetime structural guarantee and other terms and conditions visit www.metricon.com.au/terms-and-conditions
<State government conditions and eligibility criteria will apply. To see if you qualify visit www.sro.vic.gov.au/first-home-owner.
Price: $709,022
Bed  4 Bath  2 Car  2
Land Size: 596.00m²
Floor Area: 208sq
More Home for Less
TULLOCH 22, AVALON FAƇADE, LOT 99 BRADMAN ROAD, NEWBOROUGH, NORTH QUARTER

If you're an eligible first home buyer, then you can apply for the First Home Owners' Grant, which is $10,000<, to this home and land package. At Metricon, we've helped thousands of first home buyers realise their new home dreams, and we can help you too.
At Metricon, we understand that great design is the sum of many parts, and for over 47 years, our mission has been to create homes where you truly love to live.
From the moment you step inside, you can't help but be impressed by the sleek modern design and wide-open, light-filled spaces of our 7 -Star energy efficient home.


We build beautiful and sustainable designed homes without the architect-designed price, our package includes:
• 7 star energy rating
• Lifetime Structural Guarantee#
• Personalised Studio M experience
• Flooring coverings throughout
• Large 900 wide stainless steel appliances
• 20mm Stone countertops
• BAL Requirement^
• Fibre Optic Package
• Concrete driveway (Up to 35m2)
• Developer and Council requirements^
• Site Cost Contributions
• Stunning FaƧade & Eaves to faƧade
• Aluminium double glazed windows



At Metricon, we aim to provide you with innovative yet practical home designs that are designed to grow with your family's requirements well into the future. Since 1976, our design philosophy has remained the same - to design stunning homes where you'd love to live and which celebrate the diversity of Australian family life.

*Price excludes upgrade items above standard specification such as feature render and bricks, front entrance timber decking, front entry door, brick infills above garage, external lighting, fencing, concrete paths and driveway. Facade Image may also contain items not supplied by Metricon, namely landscaping and planter boxes. Aluminium double glazed windows are subject to specific home design, refer to plans.
Floorplan may not reflect developer guidelines and depicts the base Facade.
Package is correct at time of publication, availability, images, inclusions and prices are subject to change due to circumstances that may affect the price as set out in the building contract (including the land registration date not being met), changes in local, state or federal government laws and developer approval.Land is supplied by developer,land prices and availability are subject to change without notice.Advertised Package Price is based on Metricon's Freedom standard inclusions, any additional inclusions listed, Metricon's preferred siting of the home and the expected land titling date as notified by the developer and is subject to Metricon's price hold expiry date by which the owner must include essential information to Metricon to commence construction, including land title. Package price excludes customer account opening fees, stamp duty on land, legal fees and conveyancing costs including titles and property report. Typical site costs allowance is included in the price, additional site costs may apply if site survey and soil tests indicate footings and site works different to those expected for the location. Additional costs may incur if there are bushfire, wind rating or acoustic requirements. For more information on pricing and inclusions please speak with a Metricon New Home Advisor.
Newfield Real Estate Pty Ltd ACN 159 312 722, Licence number 028051L. VIC Builder's Licence: CDB-U 52967
#For details on our Lifetime structural guarantee and other terms and conditions visit www.metricon.com.au/terms-and-conditions
<State government conditions and eligibility criteria will apply. To see if you qualify visit www.sro.vic.gov.au/first-home-owner.
Price: $579,105
Bed  4 Bath  2 Car  2
Land Size: 356.00m²
Floor Area: 184sq
More Home for Less
AMIRA 20, AVALON FAƇADE, LOT 10 CODRINGTON STREET, CHARLEMONT, EAST 35

If you're an eligible first home buyer, then you can apply for the First Home Owners' Grant, which is $10,000<, to this home and land package. At Metricon, we've helped thousands of first home buyers realise their new home dreams, and we can help you too.
At Metricon, we understand that great design is the sum of many parts, and for over 47 years, our mission has been to create homes where you truly love to live.
From the moment you step inside, you can't help but be impressed by the sleek modern design and wide-open, light-filled spaces of our 7 -Star energy efficient home.

With amazing flexibility, 16 faƧade options and eight different floorplans to choose from, the Amira is the perfect way to create your family’s dream home.

If you are looking for a home that offers something a little different then you’ll certainly find it in the four bedroom Amira. Designed to complement family living whilst providing maximum flexibility, this home features a private master suite located at the front of the home and the three other bedrooms zoned at the back. The centrally located kitchen, which has a large walk-in-pantry, looks out to the open plan living area. You will certainly have plenty of room to grow.

• We build beautiful and sustainable designed homes without the architect-designed price, our package includes:
• 7 star energy rating
• Site cost allowance
• Quality tiles to bathrooms, ensuite and laundry
• Tiled shower base
• Chrome hand and slide shower rail
• Stylish stainless steel appliances
• Garage door remote control
• Aluminium double glazed windows
• Eaves to faƧade
• Electric heating & refrigerated cooling
• Lifetime Structural Guarantee#

At Metricon, we aim to provide you with innovative yet practical home designs that are designed to grow with your family's requirements well into the future. Since 1976, our design philosophy has remained the same - to design stunning homes where you'd love to live and which celebrate the diversity of Australian family life.

*Price excludes upgrade items above standard specification such as feature render and bricks, front entrance timber decking, front entry door, brick infills above garage, external lighting, fencing, concrete paths and driveway. Facade Image may also contain items not supplied by Metricon, namely landscaping and planter boxes. Aluminium double glazed windows are subject to specific home design, refer to plans.
Floorplan may not reflect developer guidelines and depicts the base Facade.
Package is correct at time of publication, availability, images, inclusions and prices are subject to change due to circumstances that may affect the price as set out in the building contract (including the land registration date not being met), changes in local, state or federal government laws and developer approval.Land is supplied by developer,land prices and availability are subject to change without notice.Advertised Package Price is based on Metricon's Freedom standard inclusions, any additional inclusions listed, Metricon's preferred siting of the home and the expected land titling date as notified by the developer and is subject to Metricon's price hold expiry date by which the owner must include essential information to Metricon to commence construction, including land title. Package price excludes customer account opening fees, stamp duty on land, legal fees and conveyancing costs including titles and property report. Typical site costs allowance is included in the price, additional site costs may apply if site survey and soil tests indicate footings and site works different to those expected for the location. Additional costs may incur if there are bushfire, wind rating or acoustic requirements. For more information on pricing and inclusions please speak with a Metricon New Home Advisor.
Newfield Real Estate Pty Ltd ACN 159 312 722, Licence number 028051L. VIC Builder's Licence: CDB-U 52967
#For details on our Lifetime structural guarantee and other terms and conditions visit www.metricon.com.au/terms-and-conditions
<State government conditions and eligibility criteria will apply. To see if you qualify visit www.sro.vic.gov.au/first-home-owner.
Price: $699,030

Land Price Trend in Kilmore VIC 3764

  • In Oct - Dec 24, the median price for vacant land in Kilmore VIC 3764 was $314,900. *
  • From Oct - Dec 17 to Oct - Dec 24, the median price for vacant land in Kilmore VIC 3764 has increased 109.93%. *
  • From 2008 to 2024, the median price for vacant land in Kilmore VIC 3764 has increased 258.33%. *
* Price data comes from Valuer-General Victoria on 05/06/25

Vacancy Rate in Kilmore VIC 3764

View full vacancy rate history in Kilmore VIC 3764 via SQM Research.


Schools near Broadstead Estate - Kilmore

Here are 6 schools near Broadstead Estate - Kilmore:

Lot 235: Amira 28 by Metricon Homes
Broadstead Estate - Kilmore