Newport by 101 Residential

DISPLAY HOME

Welcome to The Newport, where coastal living meets charming design in this stunning double-storey display home. Step inside to explore a space where elegance meets functionality.

With its charming coastal elevation, The Newport showcases clean lines, large windows, and a welcoming facade. This home offers a blend of traditional architecture and contemporary comforts that immediately feels inviting.

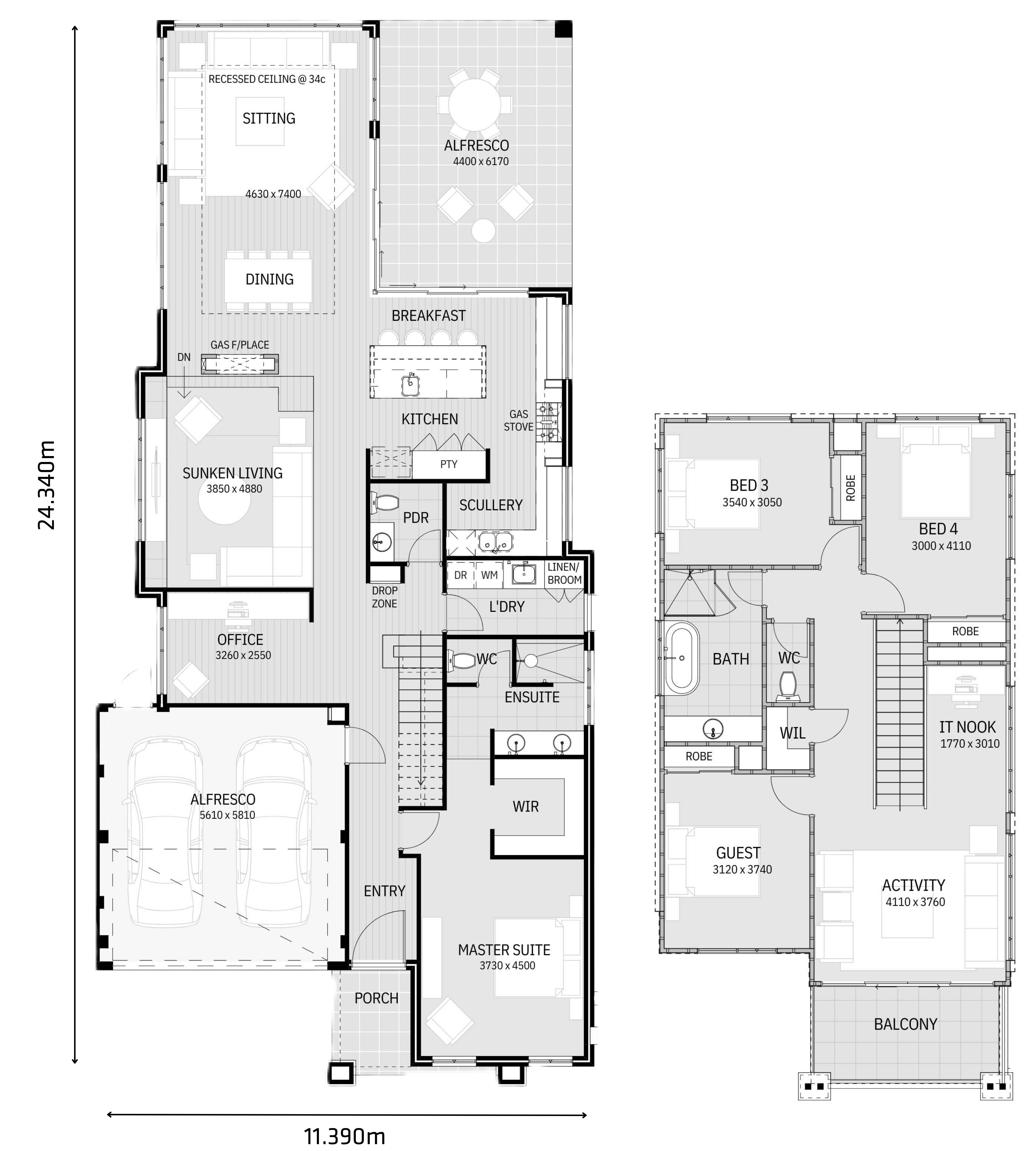
The Newport’s living space centres around a double-sided fireplace, a feature that brings warmth and character to both the sunken lounge and adjacent kitchen, dining,  and living area. The sunken lounge itself is a unique element, offering a distinct, comfortable space for the whole family.

Entertain with ease in a kitchen that is both stylish and practical, featuring a scullery for additional storage and workspace. The dining and sitting areas boast a 34c recessed ceiling, creating an airy and spacious atmosphere that’s perfect for hosting gatherings and creating lasting memories with loved ones.

Step outside to the alfresco area, seamlessly connected by recessed stacker doors, offering one expansive and uninterrupted entertaining space where indoor and outdoor living blend effortlessly.

On the ground floor, the master suite offers a private retreat with a generous walk-in robe and a large ensuite. Upstairs, the children’s area includes three bedrooms, a study space, an activity room, and a balcony, offering plenty of room for both downtime and play.

Experience The Newport, a display home that balances coastal charm with modern amenities, creating a space designed for stylish, comfortable living.

 


Floor-plan options for Newport

Newport
Bed 4
Bath 2
Car 2
Home Design: Newport
Building Type: Double Storey
Floor Area: 338.38m2
House Width: 11.39m
House Length: 24.34m
Min Block Width: 12.5m

Display Homes & 3D Tours for Newport by 101 Residential

Loading...
Newport by 101 Residential