Castle Bay & Rose Bay Duplex by Allcastle Homes

DISPLAY HOME

Luxury Living Designed for Large Families

Step into double the space, style and opportunity with the Castle Bay & Rose Bay Duplex Facade — where luxury meets flexibility.

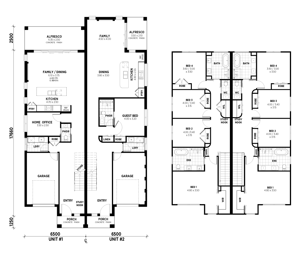
Perfect for those who love to entertain, the spacious alfresco flows effortlessly from the open-plan living areas, creating a seamless indoor-outdoor experience. With a versatile ground floor layout, you can easily accommodate a guest bedroom or home office. Thoughtful storage solutions throughout ensure your home stays organised and beautifully functional.


Floor-plan options for Castle Bay & Rose Bay Duplex

Castle Bay & Rose Bay Duplex
Bed 10
Bath 6
Living 4
Car 2
Building Type: Double Storey
Floor Area: 482.4m2
House Width: 13m
House Length: 17.3m

Display Homes & 3D Tours for Castle Bay & Rose Bay Duplex by Allcastle Homes

Loading...
Castle Bay & Rose Bay Duplex by Allcastle Homes