Grand Marseille by Allcastle Homes

DISPLAY HOME

Timeless Elegance and Modern Luxury

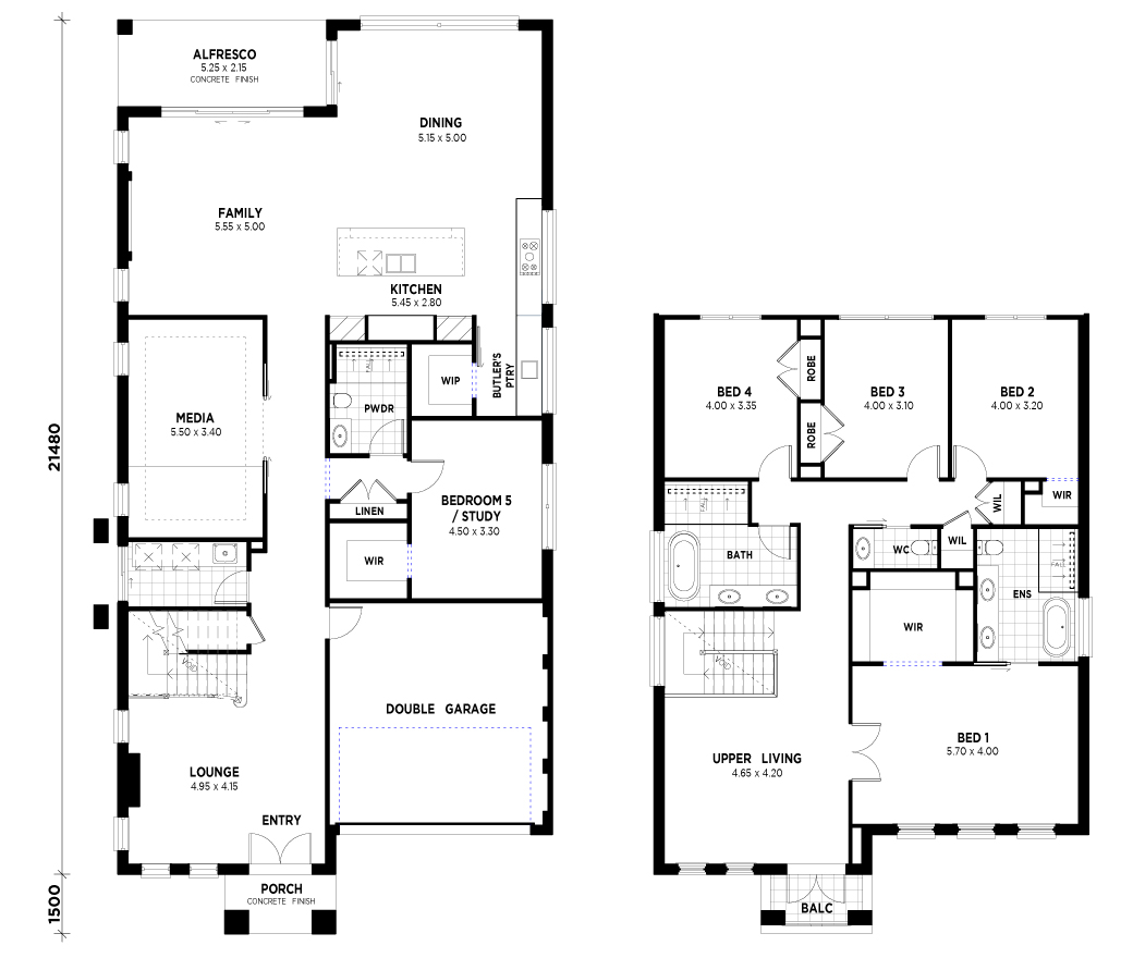
Evoking the romance of classic European architecture, The Grand Marseille 41 blends timeless French charm with modern luxury. Its elegant façade of crisp white render, black trim, and wrought iron detailing creates a striking first impression. Inside, grand double doors open to soaring ceilings and a wide hallway leading to a formal lounge with a statement fireplace. The ground floor also features a media room, guest suite with walk-in robe, and an open-plan family and dining area that flows to the alfresco. The chef’s kitchen includes a large stone island and a fully plumbed Butler’s Pantry.

Upstairs, three generous bedrooms, a family bathroom, and a master retreat with walk-in robe and stunning ensuite provide the ultimate sanctuary. The Grand Marseille 41 is a family estate combining elegance, scale, and modern living.


Floor-plan options for Grand Marseille

Grand Marseille 41
Bed 5
Bath 3
Living 4
Car 2
Home Design: Grand Marseille
Building Type: Double Storey
Floor Area: 385.4m2
House Width: 10.9m
House Length: 21.4m

Display Homes & 3D Tours for Grand Marseille by Allcastle Homes

Loading...
Grand Marseille by Allcastle Homes