Grandworth by Allcastle Homes

DISPLAY HOME

Live the Champagne Lifestyle

Welcome to the high life. Create a home unlike any other with a spectacular array of luxurious upgrades and customisation options available for the Grandworth Dynasty 40.

The heart of the home lies in the beautifully presented family area, complete with optional fireplace and display cabinet to elevate the sense of luxury.

Serve up feasts for the family in the gourmet kitchen and relax with a morning coffee at the optional benchtop overlooking the sunlit alfresco.

An impressive media room with optional raised viewing platform is a delight for movie buffs, while the large home office is perfectly positioned for privacy at the front of the home.

The upper level is no less impressive with up to 5 bedrooms including generous main with private ensuite and large separate living/retreat.
 


Floor-plan options for Grandworth

Grandworth Dynasty 40
Bed 6
Bath 3
Living 3
Car 2
Home Design: Grandworth
Building Type: Double Storey
Floor Area: 371.60m2
House Width: 12m
House Length: 18.03m
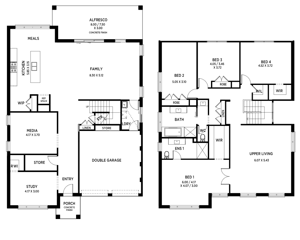
Grandworth Dynasty 43
Bed 6
Bath 2
Living 4
Car 2
Home Design: Grandworth
Building Type: Double Storey
Floor Area: 400.75m2
House Width: 11.75m
House Length: 19.85m
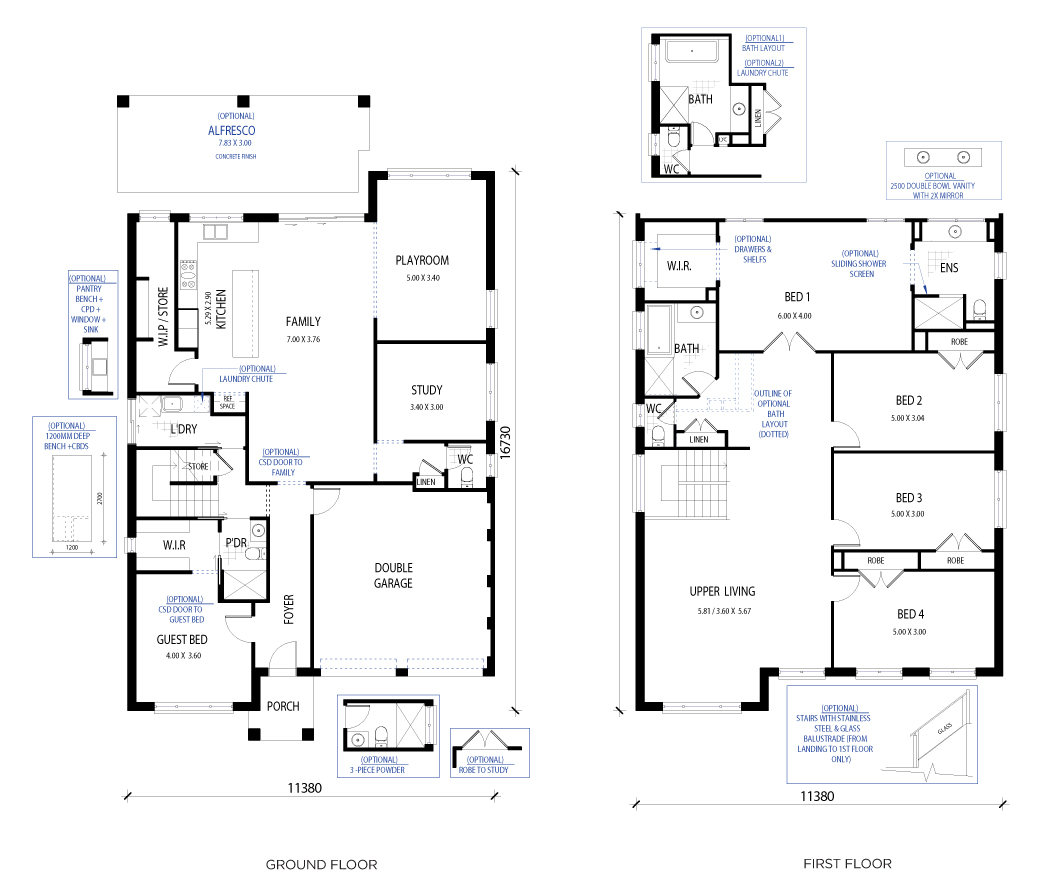
Grandworth Newbury 37
Bed 5
Bath 3
Living 3
Car 2
Home Design: Grandworth
Building Type: Double Storey
Floor Area: 342.35m2
House Width: 11.38m
House Length: 16.73m

Display Homes & 3D Tours for Grandworth by Allcastle Homes

Loading...
Grandworth by Allcastle Homes