Savoy by Arden Homes
DISPLAY HOME
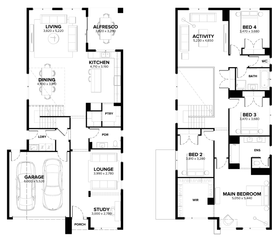
A stunning void that fills the central hub of the dining, kitchen and family area is the centrepiece of the Savoy.
Light fills every space of this four bedroom home that incorporates a formal living and spacious study on the ground floor. Upstairs the large master bedroom features a separate dressing room and private ensuite. There are three additional bedrooms, a centrally located bathroom and a huge rumpus area that also incorporates a children’s study area. The Savoy design projects an amazing sense of light and space, making it an exceptional home for modern family living.
Display Homes & 3D Tours for Savoy by Arden Homes
Loading...
4


