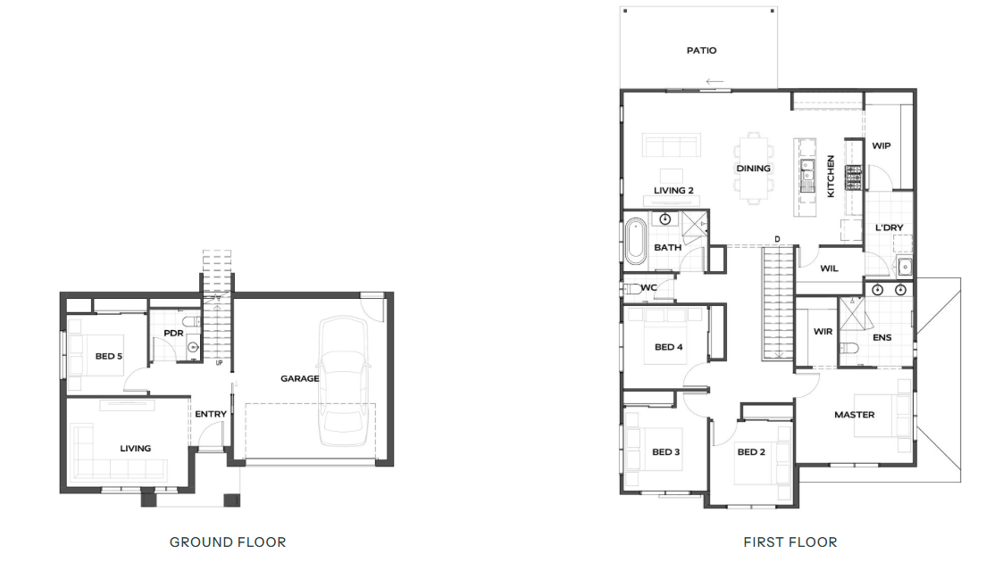
Home Designs by Arista Homes Bartle by Arista Homes HOME DESIGN This split-level home features five bedrooms, modern bathrooms, a bright upper living area, versatile lower family room, stylish kitchen, and double garage—perfect for comfortable family living. Latest Pricing & Inclusions Floor-plan options for Bartle Bartle 259 5 3 2 Builder: Arista Homes Home Design: Bartle Building Type: Double Storey Floor Area: 259m2 House Width: 12.38m House Length: 18.07m Min Block Width: 14m Latest Pricing & Inclusions