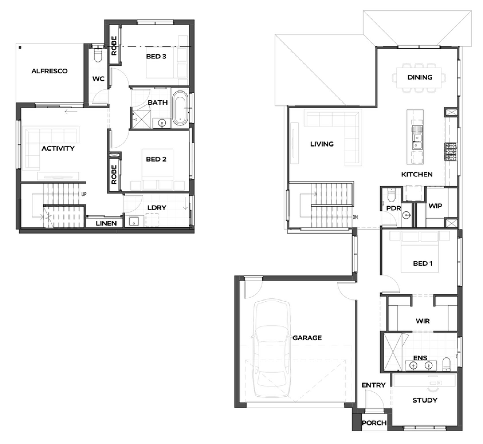
Home Designs by Arista Homes Beaufort by Arista Homes HOME DESIGN The Beaufort 239 blends comfort and style with a modern kitchen, open-plan living, upstairs master suite, three downstairs bedrooms, alfresco area, and thoughtful split-level design for family living. Latest Pricing & Inclusions Floor-plan options for Beaufort Beaufort 239 3 2 2 Builder: Arista Homes Home Design: Beaufort Building Type: Double Storey Floor Area: 239m2 House Width: 11.2m House Length: 20.22m Min Block Width: 12.5m Latest Pricing & Inclusions