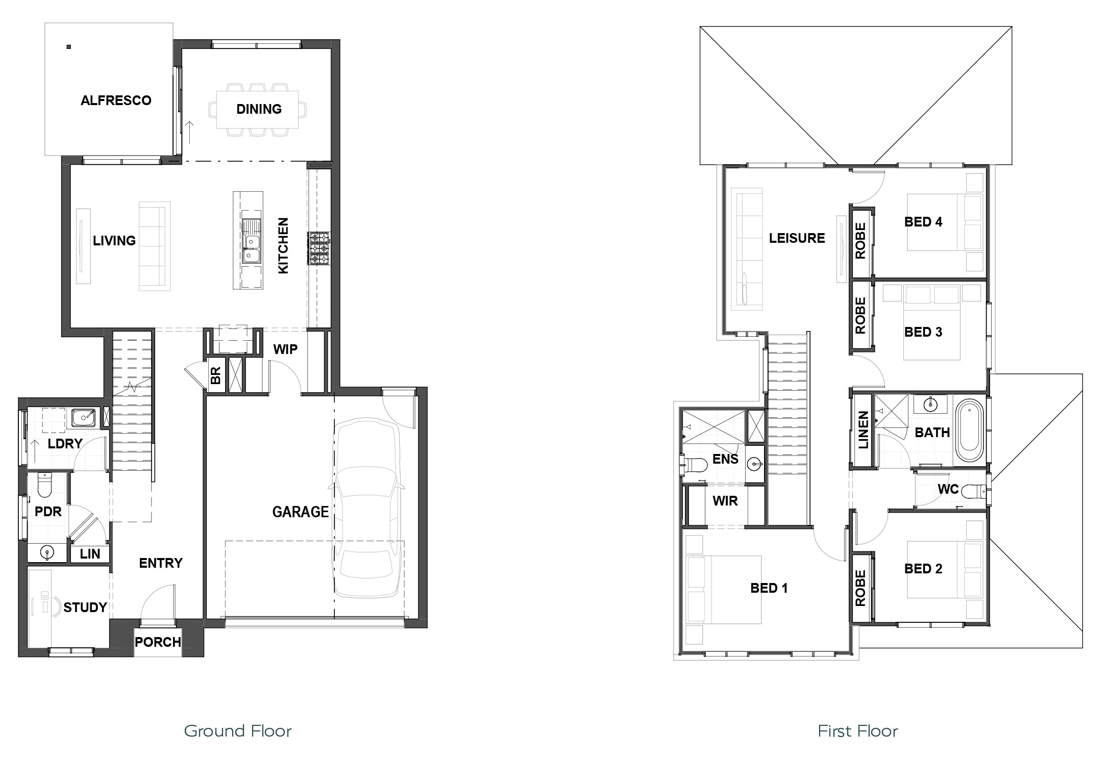
Home Designs by Arista Homes Mortlock by Arista Homes HOME DESIGN The Mortlock 243 offers a study, chef’s kitchen, open living and dining, alfresco space, master suite with ensuite and walk-in robe, three bedrooms, and an adaptable leisure area. Latest Pricing & Inclusions Floor-plan options for Mortlock Mortlock 243 4 2 2 Builder: Arista Homes Home Design: Mortlock Building Type: Double Storey Floor Area: 243m2 House Width: 11m House Length: 17.06m Min Block Width: 12.5m Latest Pricing & Inclusions