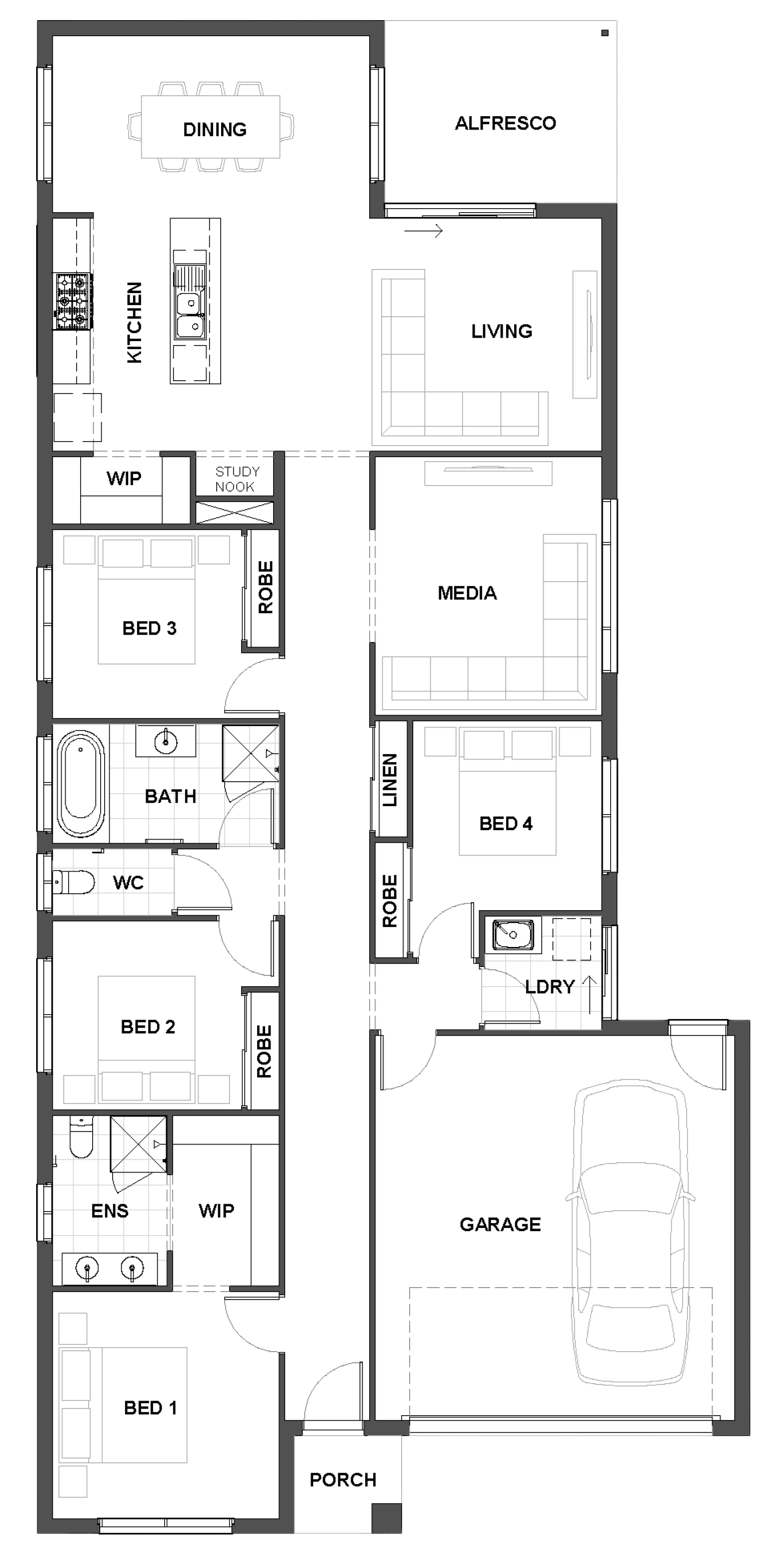
Home Designs by Arista Homes Rubens by Arista Homes HOME DESIGN The Rubens 229 features four bedrooms, a front master suite with ensuite, media room, open-plan living, kitchen with walk-in pantry, study nook, and alfresco—perfect for family living. Latest Pricing & Inclusions Floor-plan options for Rubens Rubens 229 4 2 2 Builder: Arista Homes Home Design: Rubens Building Type: Single Storey Floor Area: 229m2 House Width: 11.3m House Length: 24.01m Min Block Width: 12.5m Latest Pricing & Inclusions