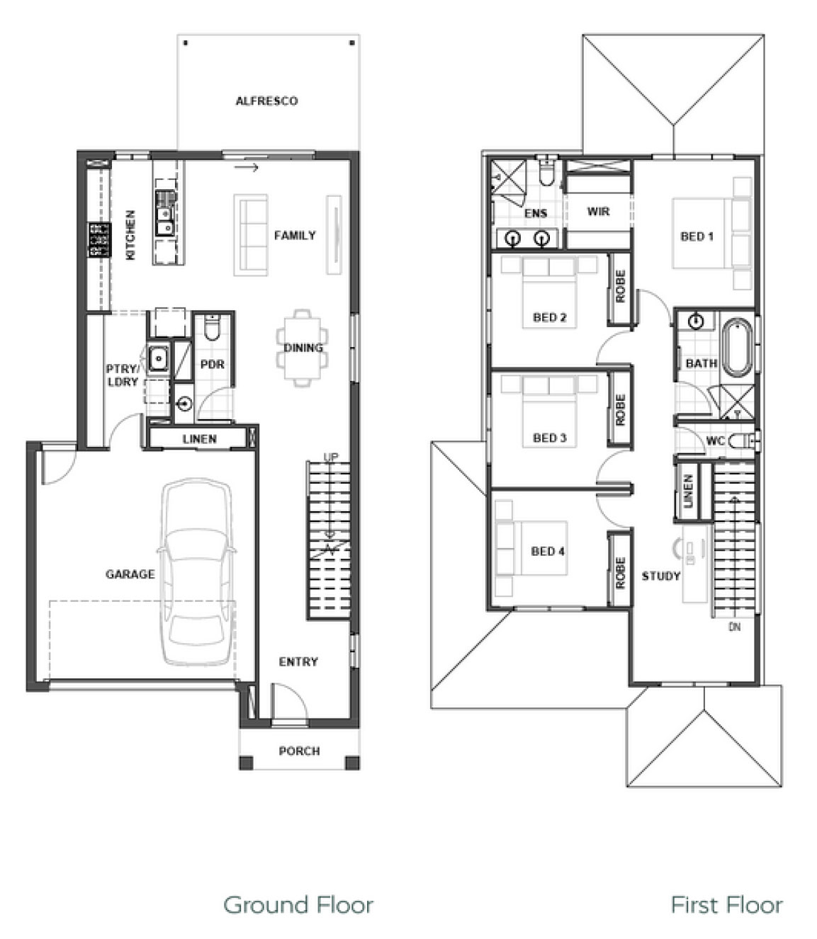
Home Designs by Arista Homes Sabina by Arista Homes HOME DESIGN The Sabina 222 is perfect for narrow blocks, featuring a master suite with ensuite, two bedrooms, semi-enclosed study, open-plan living, alfresco, double garage, and smart storage. Latest Pricing & Inclusions Floor-plan options for Sabina Sabina 222 4 2 2 Builder: Arista Homes Home Design: Sabina Building Type: Double Storey Floor Area: 222m2 House Width: 8.63m House Length: 19.07m Min Block Width: 10m Sabina 243 4 2 2 Builder: Arista Homes Home Design: Sabina Building Type: Double Storey Floor Area: 243m2 House Width: 8.63m House Length: 19.92m Min Block Width: 10m Latest Pricing & Inclusions