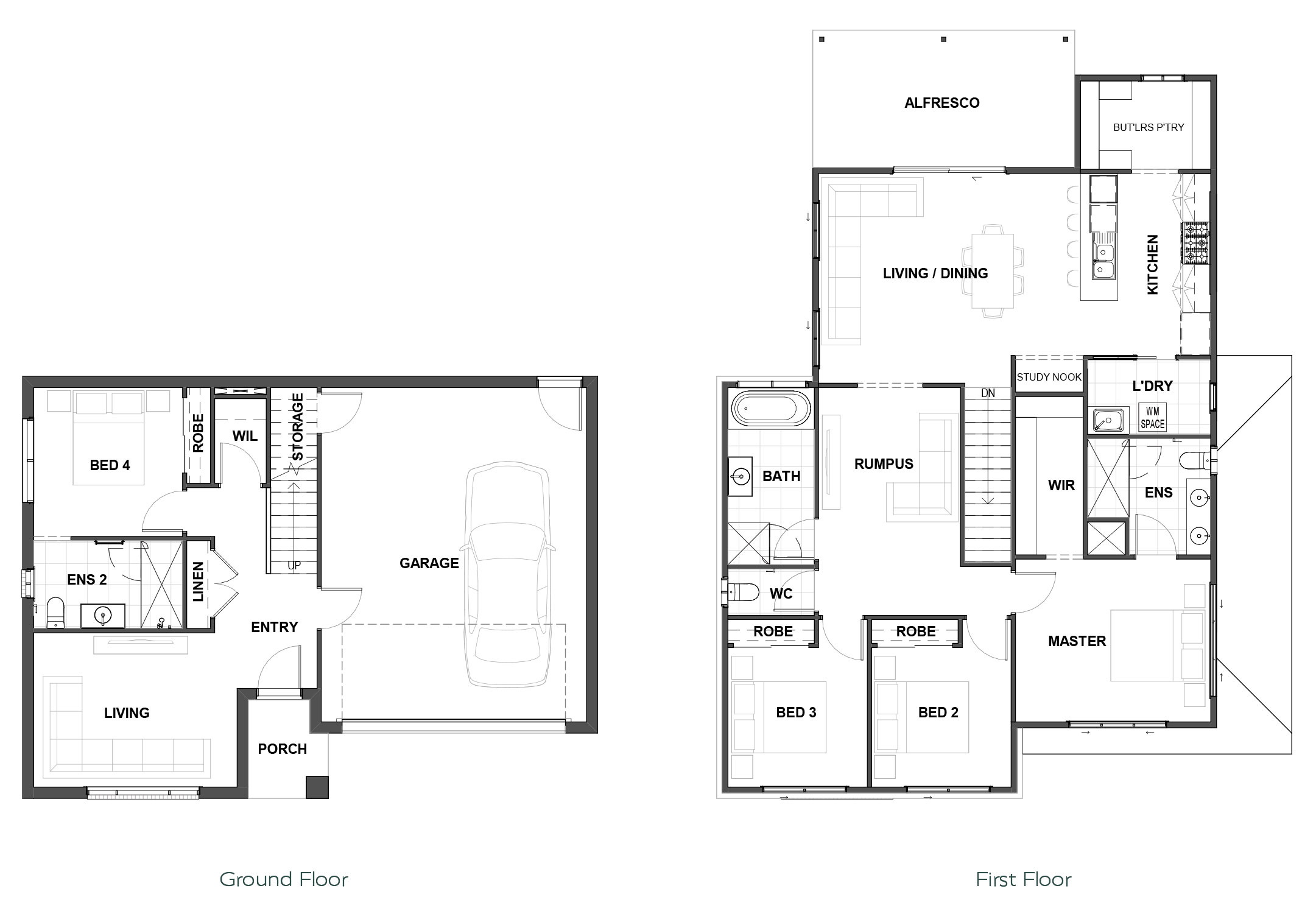
Home Designs by Arista Homes Thornton by Arista Homes HOME DESIGN The Thornton 255 is a modern split-level home featuring open living, a sleek kitchen with ample storage, a luxurious master suite with walk-in closet, and well-appointed bedrooms throughout. Latest Pricing & Inclusions Floor-plan options for Thornton Thornton 255 4 3 2 Builder: Arista Homes Home Design: Thornton Building Type: Double Storey Floor Area: 255m2 House Width: 12.36m House Length: 16.51m Min Block Width: 13.5m Latest Pricing & Inclusions