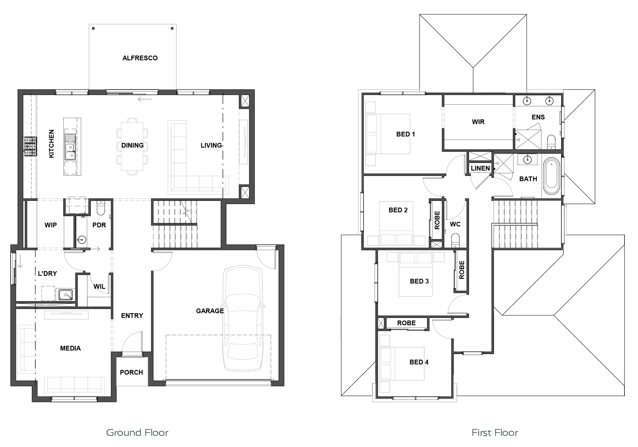
Home Designs by Arista Homes Wakefield by Arista Homes HOME DESIGN The Wakefield 270 is a two-storey home with a media room, kitchen with Walk-In Pantry, open dining and living, alfresco, master suite with ensuite, and three additional bedrooms. Latest Pricing & Inclusions Floor-plan options for Wakefield Wakefield 270 4 2 2 Builder: Arista Homes Home Design: Wakefield Building Type: Double Storey Floor Area: 270m2 House Width: 12.52m House Length: 17.32m Min Block Width: 14m Latest Pricing & Inclusions