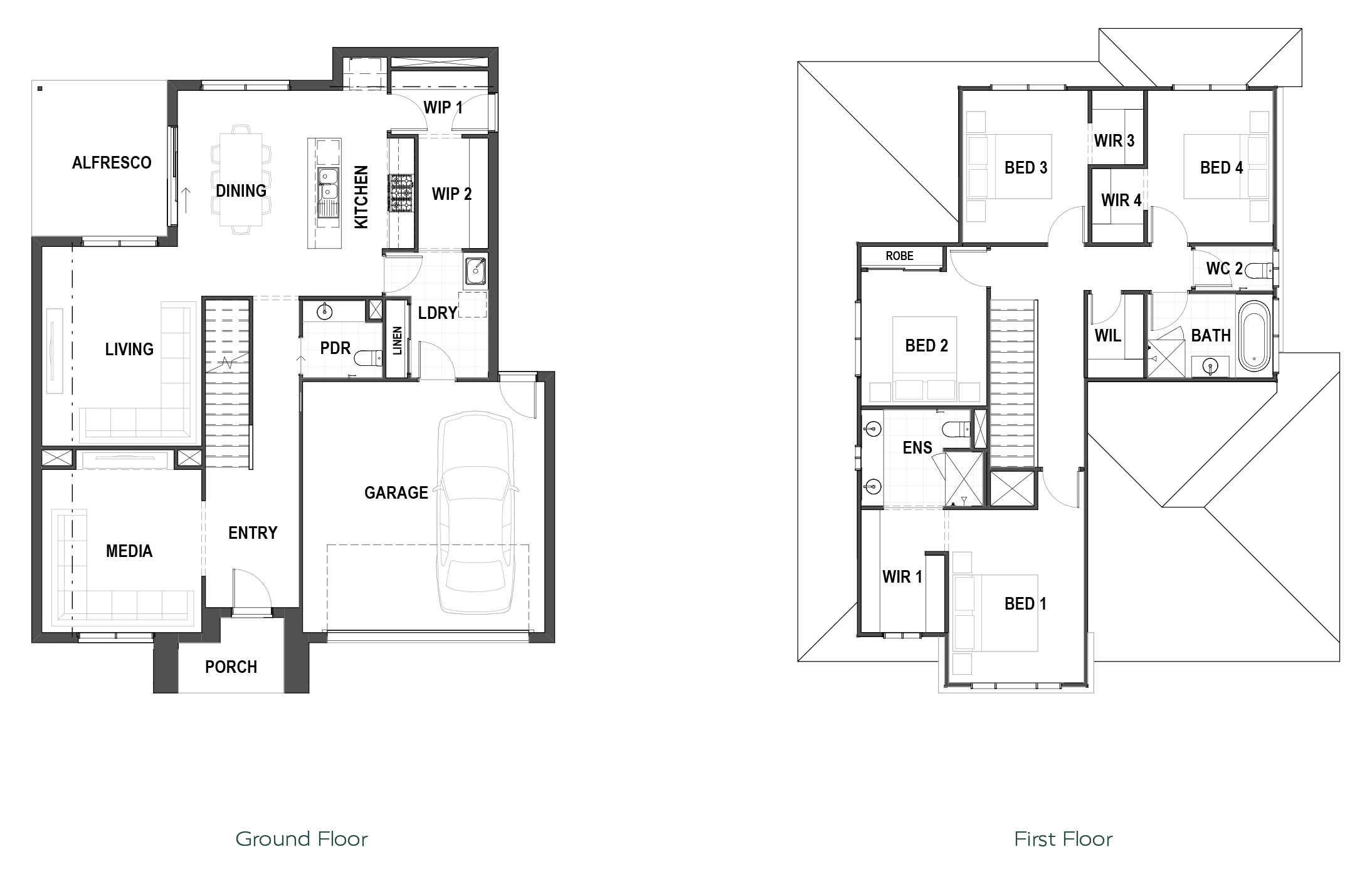
Home Designs by Arista Homes Wooramel by Arista Homes HOME DESIGN The Wooramel 266 is a stylish two-storey home with a media room, open-plan living, dining and kitchen with dual walk-in pantry, alfresco, master suite, four bedrooms, and ample storage. Latest Pricing & Inclusions Floor-plan options for Wooramel Wooramel 266 4 2 2 Builder: Arista Homes Home Design: Wooramel Building Type: Double Storey Floor Area: 266m2 House Width: 12.49m House Length: 14.43m Min Block Width: 14m Latest Pricing & Inclusions