Coachella by Aveling Homes

DISPLAY HOME

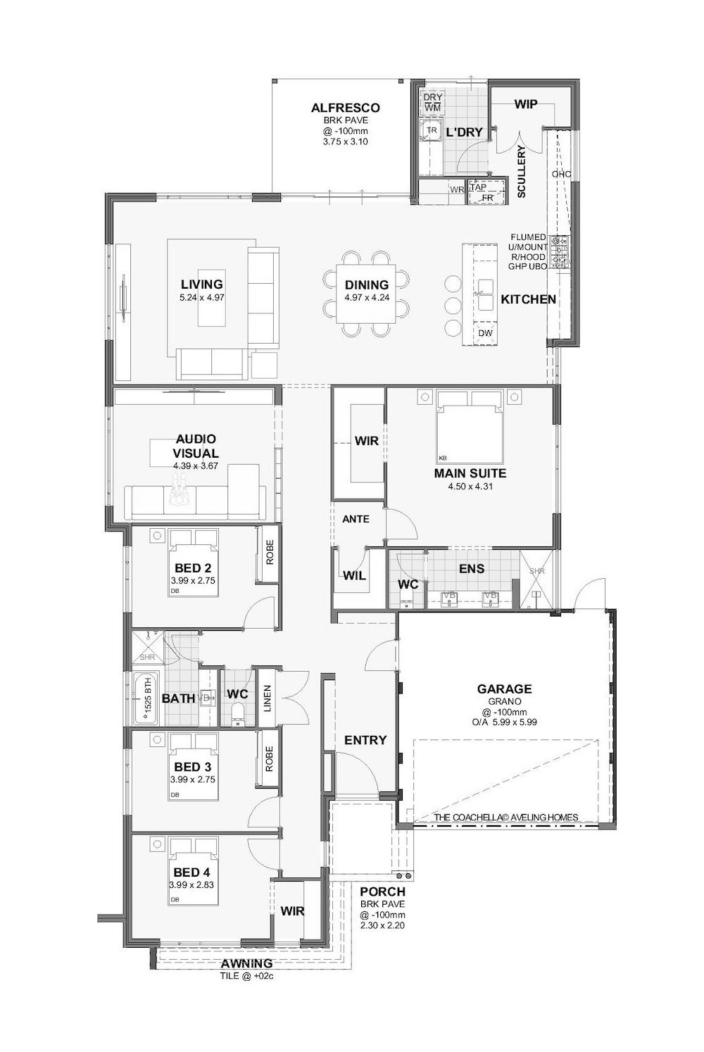
Get ready to dance to your own beat at “The Coachella” display home! Discover funky breeze blocks, dive into the latest blockbusters in the audio-visual room, and indulge in a sublime master suite and ensuite. From breezy interiors to stylish finishes, creativity is woven into every detail. Don’t overlook the scullery and walk-in pantry, perfect for seamless entertaining.

 


Floor-plan options for Coachella

Coachella
Bed 4
Bath 2
Car 2
Home Design: Coachella
Building Type: Single Storey
Floor Area: 273m2
Min Block Width: 16m

Display Homes & 3D Tours for Coachella by Aveling Homes

Loading...
Coachella by Aveling Homes