Apollo by Beachwood Homes

DISPLAY HOME

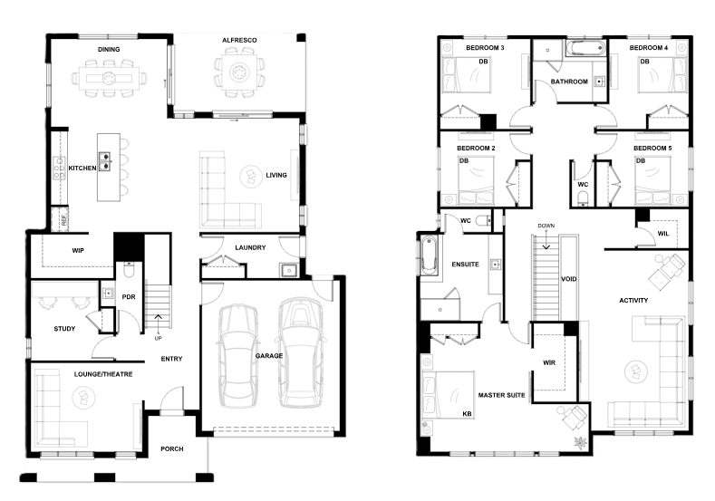
For large families, you could do no better than the Apollo. Not only does this imaginative design offer as many as five bedrooms, but also three substantial living spaces to spread out in as well. With a separate study to work in, and a walk-in-pantry to surround yourself in, this design offers you all the space you could ask for.


Floor-plan options for Apollo

Apollo 374
Bed 5
Bath 2
Car 2
Home Design: Apollo
Building Type: Double Storey
Floor Area: 374.1m2
House Width: 13.04m
House Length: 17.92m
Min Block Width: 16m
Min Block Depth: 25m

Display Homes & 3D Tours for Apollo by Beachwood Homes

Loading...

More House and Land Packages by Beachwood Homes (Home Builder)

Apollo by Beachwood Homes