Lorne by Beachwood Homes

DISPLAY HOME

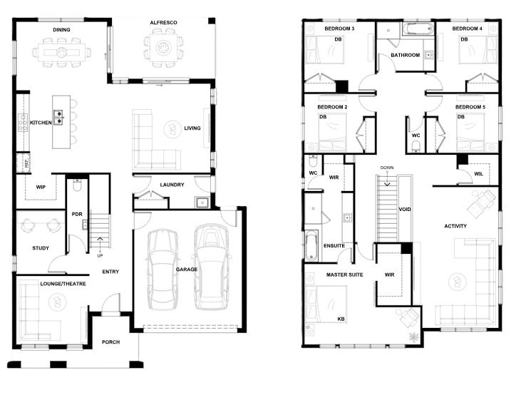
For large families, you could do no better than the Lorne. Not only does this imaginative design offer as many as five bedrooms, but also three substantial living spaces to spread out in as well. With a separate study to work in, and a walk-in-pantry to surround yourself in, this design offers you all the space you could ask for.


Floor-plan options for Lorne

Lorne 358
Bed 5
Bath 2
Car 2
Home Design: Lorne
Building Type: Double Storey
Floor Area: 358.9m2
House Width: 12.24m
House Length: 17.92m
Min Block Width: 14m
Min Block Depth: 25m

Display Homes & 3D Tours for Lorne by Beachwood Homes

Loading...

More House and Land Packages by Beachwood Homes (Home Builder)

Bed  5 Bath  2 Car  2
Suburb: Clyde VIC 3978
Land Size: 392.00m²
Floor Area: 38.63sq
Discover a new community at Fernlea

Fernlea is more than just a new address – it’s the next chapter in a proud family legacy. Fernlea offers a new kind of neighbourhood where connection, community and possibility come together. This is a place to grow, belong, and put down your roots.

Because community isn’t something you visit. It’s something you come home to.

The Lorne 358 from Beachwood Homes includes:

✓ 25-year structural guarantee
✓ 7-Star energy rating compliance
✓ Double glazed windows & sliding doors
✓ Fisher & Paykel 600mm kitchen appliances
✓ Formica laminate benchtops & cabinetry
✓ Flooring throughout (tiles & carpet)
✓ Gas ducted heating & Rinnai instant hot water
✓ LED downlights to main living areas
✓ Colorbond fascia & garage door
✓ 3kW Solar PV system
✓ Tiled shower bases & semi-frameless screens
✓ Winning Builder: HIA Professional Medium Builder 2024
& 2025

*When you contact the number in this listing, your number, enquiry, call duration and time will be collected on behalf of realestate.com.au and provided to Core Projects Pty Ltd (Core Projects) to respond to your enquiry. For further details, see our Privacy Policy.

Prices are subject to change without notice and are exclusive of GST. Dates for Titles are estimated only and are subject to change. While every care is taken in preparing this listing, Core Projects makes no representations or warranties as to the currency or accuracy of the information which is subject to change at any time. The recipient must make its own independent enquiries to verify the content of this document. Core Projects will not be liable for any reliance the recipient makes on the content.
Price: $959,600
Lorne by Beachwood Homes