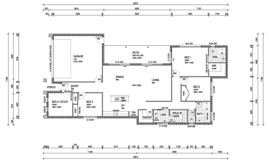
Home Designs by Bella QLD Properties Balmoral by Bella QLD Properties HOME DESIGN Latest Pricing & Inclusions Floor-plan options for Balmoral Balmoral 4 2 1 2 Builder: Bella QLD Properties Home Design: Balmoral Building Type: Single Storey Floor Area: 208.06m2 House Width: 11m House Length: 22m Latest Pricing & Inclusions