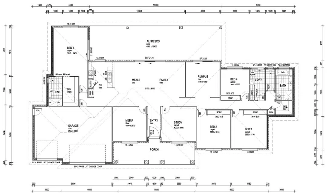
Home Designs by Bella QLD Properties Homestead by Bella QLD Properties HOME DESIGN Latest Pricing & Inclusions Floor-plan options for Homestead Homestead 4 2 3 2 Builder: Bella QLD Properties Home Design: Homestead Building Type: Single Storey Floor Area: 401m2 House Width: 16m House Length: 30m Latest Pricing & Inclusions