Mooloola by Bella QLD Properties

One of Bella’s more popular designs, The Mooloola is a contemporary designed, single story family home. With a façade that allows for an incredibly modern look, the design suits a wide range of people looking to build a new home. The open plan living area flowing out to the large alfresco area is perfect for the Queensland entertainer’s way of life.


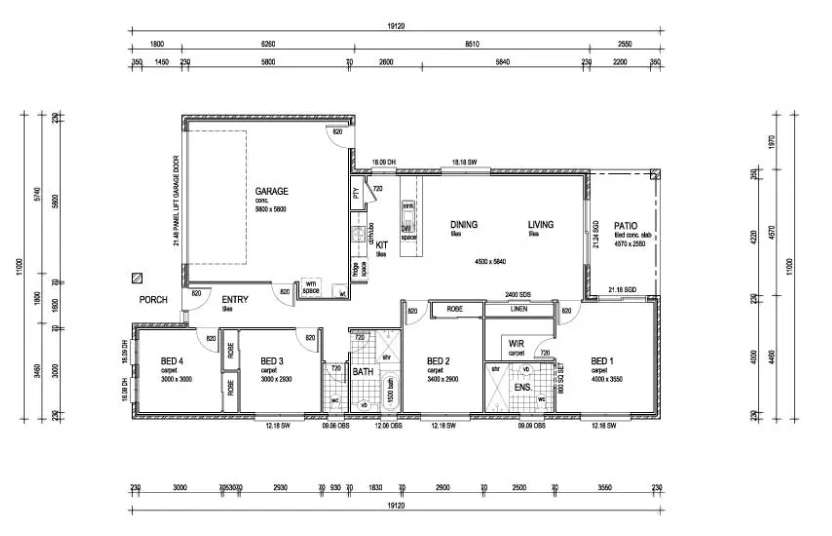
Floor-plan options for Mooloola

Mooloola
Bed 4
Bath 2
Living 2
Car 2
Home Design: Mooloola
Building Type: Single Storey
Floor Area: 178.19m2
House Width: 11m
House Length: 20m
Mooloola by Bella QLD Properties