Catalina by Blueprint Homes

DISPLAY HOME

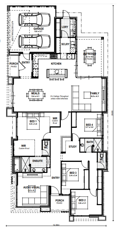
The Catalina’s contemporary coastal design is all class. This four bedroom, two bathroom home is designed to suit standard and corner blocks, with the latter featuring two elevated frontages. This thoughtful and inspired design ensures The Catalina looks great from every angle.

The contemporary styling continues inside the home with a generous open plan kitchen and family area, both of which flow into the spacious alfresco. The modern look kitchen and scullery will delight with its luxury fittings and ample storage.

At the front of the home is the master retreat and three minor bedrooms, plus a home theatre and study nook. The Catalina comes with high 31-course ceilings as standard throughout the home which adds even more space to this already large home.

If you love entertaining family and friends, The Catalina is your perfect home.


Floor-plan options for Catalina

Catalina
Bed 4
Bath 2
Living 2
Car 2
Home Design: Catalina
Building Type: Single Storey
Floor Area: 279m2
House Width: 12.39m
House Length: 26.69m
Min Block Width: 15m

Display Homes & 3D Tours for Catalina by Blueprint Homes

Loading...
Catalina by Blueprint Homes