Featherflower by Blueprint Homes

DISPLAY HOME

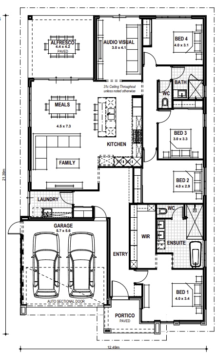
This 4-bedroom, 2-bathroom home blends style and comfort to deliver a stunning space for the whole family. The home offers 193m2 of living area and features a large open-plan kitchen and dining. The 31c high ceilings help create a light and airy atmosphere throughout.

The kitchen offers plenty of bench space and comes complete with 20mm stone benchtops, double electric ovens and a black ceramic gas hot plate. The adjoining living areas flow seamlessly into the large paved alfresco area to create an ideal space for family gatherings.

The master bedroom includes a huge walk-in robe and a luxurious ensuite, providing the perfect retreat for parents and a dedicated theatre room is a great space to relax for family movie nights.

Designed with sustainability in mind, this 6-star compliant home offers energy efficiency without compromising on luxury.


Floor-plan options for Featherflower

Featherflower
Bed 4
Bath 2
Car 2
Home Design: Featherflower
Building Type: Single Storey
Floor Area: 248m2
House Width: 12.49m
House Length: 21.39m
Min Block Width: 13m

Display Homes & 3D Tours for Featherflower by Blueprint Homes

Loading...
Featherflower by Blueprint Homes