Illyarrie by Blueprint Homes

DISPLAY HOME

With its clever design, premium inclusions and smart 7-star energy rating, the Illyarrie brings comfort and function together in one beautiful space. From the high 31c ceilings to the large, open-plan living area, you’ll instantly notice the Illyarrie is a home that feels light, bright and spacious.

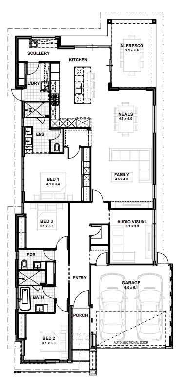
This 3-bedroom, 2-bathroom home offers a total living area of 207 sqm and comes packed with features families will love, including an expansive kitchen with walk-through scullery, a dedicated home theatre and a separate powder room for guests. The master bedroom offers the ultimate sanctuary with an extensive built-in robe and ensuite.

For those who love entertaining family and friends, the alfresco area flows seamlessly off the living area, offering even more area to entertain. Or, if you prefer winding down with a movie, the theatre room offers the ideal escape.

The Illyarrie is designed to make your home life comfortable and effortless. Its open-plan layout is perfect for keeping families connected, while also offering separate living spaces to retreat to when needed.


Floor-plan options for Illyarrie

Illyarrie
Bed 3
Bath 2
Car 2
Home Design: Illyarrie
Building Type: Single Storey
Floor Area: 247m2
House Width: 11.39m
House Length: 22.59m
Min Block Width: 12m

Display Homes & 3D Tours for Illyarrie by Blueprint Homes

Loading...
Illyarrie by Blueprint Homes