Kinmore by Blueprint Homes

DISPLAY HOME

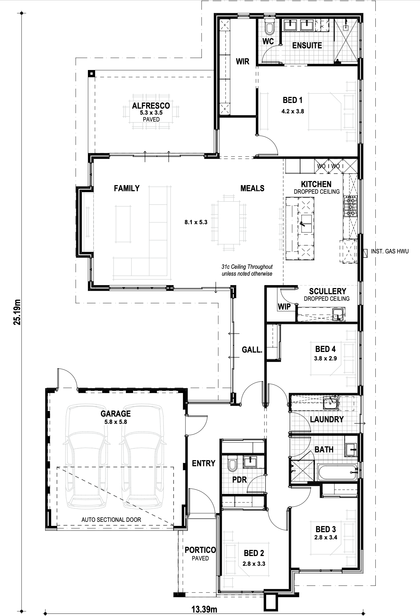
The Kinmore offers spacious indoor and outdoor living areas, a luxury kitchen with a scullery plus all the latest features you expect from Blueprint Homes.

This spectacular four-bedroom, two-bathroom home will have you feeling relaxed from the moment you walk in. With high 31c ceilings throughout and an open-plan family, meals and kitchen area, The Kinmore is the ultimate family home.

You’ll love the European-inspired features throughout the kitchen, plus the adjoining scullery ensures you’ll always have endless storage and a clutter-free cooking environment.

The master suite, located at the rear of the home, is a true sanctuary, featuring a spacious walk-in robe and a contemporary ensuite – a perfect parent’s retreat.   Located at the front of the home are three large minor bedrooms and a powder room.

Every detail in The Kinmore has been carefully considered to create a home that is both functional and welcoming.


Floor-plan options for Kinmore

Kinmore
Bed 4
Bath 2
Car 2
Home Design: Kinmore
Building Type: Single Storey
Floor Area: 245m2
House Width: 13.39m
House Length: 25.19m
Min Block Width: 14m

Display Homes & 3D Tours for Kinmore by Blueprint Homes

Loading...
Kinmore by Blueprint Homes