Lorikeet by Blueprint Homes

DISPLAY HOME

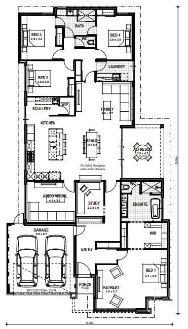
This stunning four-bedroom, two-bathroom home has a generous 248m² of living area, including a large, perfectly located alfresco.

There are so many highlights throughout the home – from the dedicated parent’s retreat in the master bedroom to the spacious open plan kitchen, living and dining area, the Lorikeet offers the perfect combination of practical living and modern styling.

The 31c high ceilings throughout the home enhance the sense of space and light, and the inclusion of a dedicated study and theatre room offer additional living spaces for work or relaxation.

As with all new Blueprint Homes, The Lorikeet comes with a 7-star energy rating and is backed by Blueprint’s 30-year structural warranty.


Floor-plan options for Lorikeet

Lorikeet
Bed 4
Bath 2
Car 2
Home Design: Lorikeet
Building Type: Single Storey
Floor Area: 248m2
House Width: 14.09m
House Length: 26.09m
Min Block Width: 15m

Display Homes & 3D Tours for Lorikeet by Blueprint Homes

Loading...
Lorikeet by Blueprint Homes