Rottnest by Blueprint Homes

DISPLAY HOME

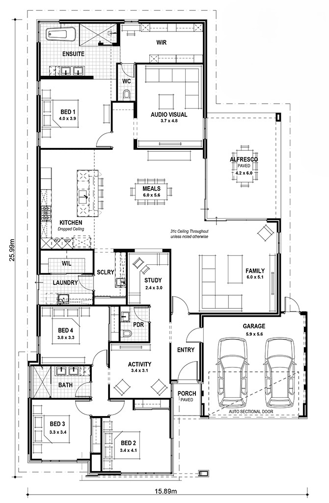
Like its island namesake, The Rottnest offers a relaxing haven for the whole family. This exquisite four-bedroom, two-bathroom home features high 31c ceilings throughout, creating an atmosphere of grandeur and openness. The Rottnest has a generous 293m² of interior living space, expanding to a total area of 328m2 with the alfresco, and is designed for a minimum block width of 17m.

At the heart of the home is the spacious kitchen, complete with scullery, seamlessly integrating functionality and style. The open-plan dining and family areas wrap around the alfresco area creating a huge entertaining space. Add to this the activity room, private study, home theatre and separate powder room and you’ve got the complete home for entertaining and family living.  

The master suite is a true retreat, complete with a luxurious free-standing bath in the ensuite and an expansive custom walk-in robe. It really is a sanctuary of elegance and comfort.

 


Floor-plan options for Rottnest

Rottnest
Bed 4
Bath 2
Car 2
Home Design: Rottnest
Building Type: Single Storey
Floor Area: 328m2
House Width: 15.89m
House Length: 25.99m
Min Block Width: 17m

Display Homes & 3D Tours for Rottnest by Blueprint Homes

Loading...
Rottnest by Blueprint Homes