Sorrento by Brolen Homes

DISPLAY HOME

Discover the epitome of luxury and family-oriented design with The Sorrento, an ideal residence for large families seeking ample space and a sophisticated, modern layout.

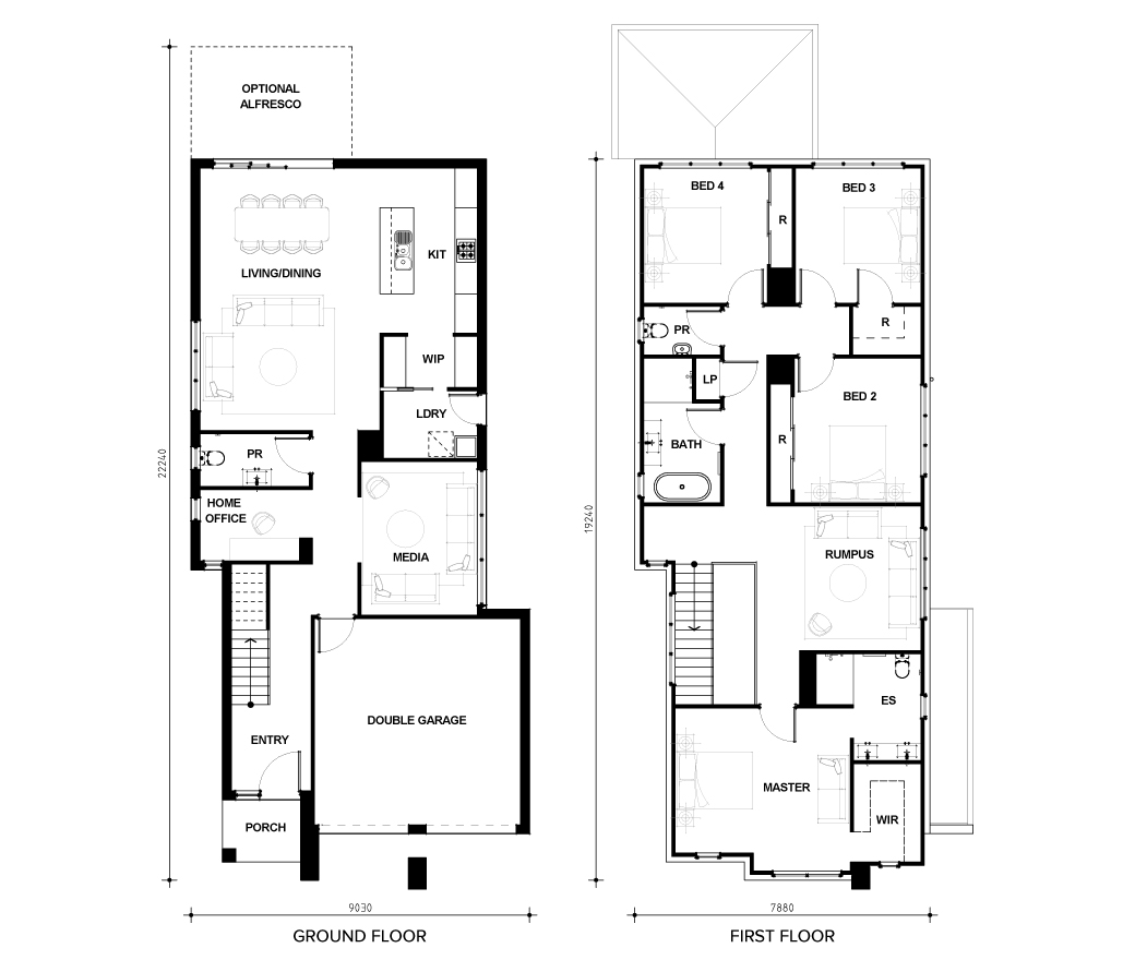
On the ground floor, expansive living spaces, a media room, a home office, and a discreet powder room cater to both hospitality and everyday convenience. At the heart of the home, a state-of-the-art gourmet kitchen equipped with a walk-in pantry makes culinary endeavours a delight. The upper floor promises a retreat into opulence, with a rumpus room and well-appointed bedrooms ensuring serene comfort. With a blend of both open and secluded areas, The Sorrento is perfectly suited for families or anyone aspiring to a grand lifestyle.  


Floor-plan options for Sorrento

Sorrento 32
Bed 4
Bath 2.5
Living 3
Car 2
Home Design: Sorrento
Building Type: Double Storey
Floor Area: 300.1m2
House Width: 9.03m
House Length: 22.2m
Min Block Width: 10m

Display Homes & 3D Tours for Sorrento by Brolen Homes

Loading...

More House and Land Packages by Brolen Homes (Home Builder)

Sorrento by Brolen Homes