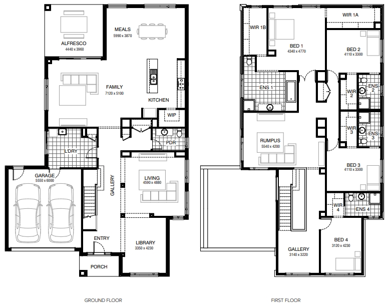
DISPLAY HOMEMorely 421 | Hester @ Meridian Estate - Clyde North Home Designs by Burbank Homes Morely by Burbank Homes HOME DESIGN Latest Pricing & Inclusions Floor-plan options for Morely Morely 421 4 4.5 3 2 Builder: Burbank Homes Home Design: Morely Building Type: Double Storey Floor Area: 421.6m2 House Width: 13.91m House Length: 20.63m Min Block Width: 16m Min Block Depth: 30m Latest Pricing & Inclusions Display Homes & 3D Tours for Morely by Burbank Homes Loading... Morely 421 | Hester Façade By Burbank Homes Meridian Estate - Clyde North Meridian Estate - Clyde North More House and Land Packages by Burbank Homes (Home Builder) House & Land [Northside Estate] 1: Lot 103 Alexander Blvd: 37 Available 4 3 2Suburb: Clyde North VIC 3978 Builder: Burbank Homes Land Size: 400.00m²Floor Area: 37sqOrientation: EastEst. Land Registration: Mar 2026Est. Completion: Dec 2026Discover house and land at Northside Clyde North’s newest community occupies the premier north side position on Thompsons Road. Experience the perfect blend of nature, comfort, and balance, beautifully bordered by the beauty of Cardinia Creek.We've partnered with Burbank Homes to package up the Almeda 37, from just $923,600. Register your interest and visit the Northside sales office today to uncover a vibrant new community and experience life on the Northside! Price: From $923,600 House & Land [Alamora Estate] Lot 1641 Hogans Road: Almeda 37 Available 4 3 2Suburb: Tarneit VIC 3029 Builder: Burbank Homes Land Size: 400.00m²Orientation: South Price: $882,055 House & Land [Northside Estate] 1: Lot 104 Alexander Blvd: Viewcrest 31 Available 4 4 2Suburb: Clyde North VIC 3978 Builder: Burbank Homes Land Size: 400.00m²Floor Area: 31sqEst. Land Registration: Mar 2026Est. Completion: Mar 2027Discover house and land at Northside Clyde North’s newest community occupies the premier north side position on Thompsons Road. Experience the perfect blend of nature, comfort, and balance, beautifully bordered by the beauty of Cardinia Creek.We've partnered with Burbank Homes to package up the Viewcrest 31, from just $944,179. Register your interest and visit the Northside sales office today to uncover a vibrant new community and experience life on the Northside! Price: From $944,179 More Townhouses by Burbank Homes (Home Builder) Townhouse Lot 10 Sold 3 2 2Suburb: Greenvale VIC 3059 Builder: Burbank Homes Land Size: 168.00m²Floor Area: 18.4sqOrientation: EastEst. Completion: Nov 2024 Located in central Greenvale the Alyssa collection of Homes with Burbank Urban are a collection not to be missed.This is the final release of homes within 45 Carrol Lane Estate!Architecturally designed by Burbank Urban featuring timeless facades,quality finishes and fixtures with a contemporary style. Each residencehas been cleverly designed to maximise space and light, ensuring yournew home feels modern, inviting and without compromise. The idealcombination of lifestyle and locationTURNKEY INCLUSIONS:- Fixed Price- 20mm Stone to Kitchen & Bathroom- Double Glazing- Flooring Throughout- Split System to main living- Fencing- Landscaping- Driveway- Clothesline Price: $649,000 Townhouse Lot 16 Sold 4 2 2Suburb: Greenvale VIC 3059 Builder: Burbank Homes Land Size: 168.00m²Floor Area: 19.6sqOrientation: EastEst. Completion: May 2025 Located in central Greenvale the Alyssa collection of Homes with Burbank Urban are a collection not to be missed.This is the final release of homes within 45 Carrol Lane Estate!Architecturally designed by Burbank Urban featuring timeless facades,quality finishes and fixtures with a contemporary style. Each residencehas been cleverly designed to maximise space and light, ensuring yournew home feels modern, inviting and without compromise. The idealcombination of lifestyle and locationTURNKEY INCLUSIONS:- Fixed Price- 20mm Stone to Kitchen & Bathroom- Double Glazing- Flooring Throughout- Split System to main living- Fencing- Landscaping- Driveway- Clothesline Price: $689,000