Karridale by Celebration Homes

DISPLAY HOME

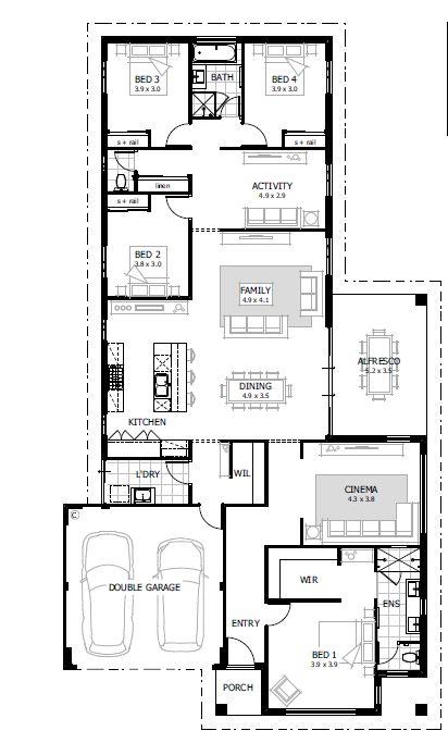
Welcome to the Karridale 265, the largest home in our Karridale series. This 4×2 home also boasts a home theatre and activity room.

The central alfresco is a crowd favourite, seamlessly blending indoor and outdoor living. The primary bedroom is tucked at the front of the home with the theatre, and includes a walk-in wardrobe and spacious ensuite. On opposite ends to the activity room and minor bedrooms, it really will be your own personal oasis.

Lastly, the shopper’s entry from the garage straight to the kitchen helps make daily tasks much more convenient, complete with walk-in linen cupboard for extra storage.

 


Floor-plan options for Karridale

Karridale 265
Bed 4
Bath 2
Car 2
Home Design: Karridale
Building Type: Single Storey
Floor Area: 264m2
Min Block Width: 15m

Display Homes & 3D Tours for Karridale by Celebration Homes

Loading...
Karridale by Celebration Homes