Hawthorn by Cheviot Homes

DISPLAY HOME

There’s a lot to love about the Hawthorn. Simple, smart, stylish and very affordable.

The Hawthorn has an adaptable design provides options for separate media room, a huge master suite and a large alfresco. In each design, the family can meet in the middle and come together around the large kitchen bench.

 


Floor-plan options for Hawthorn

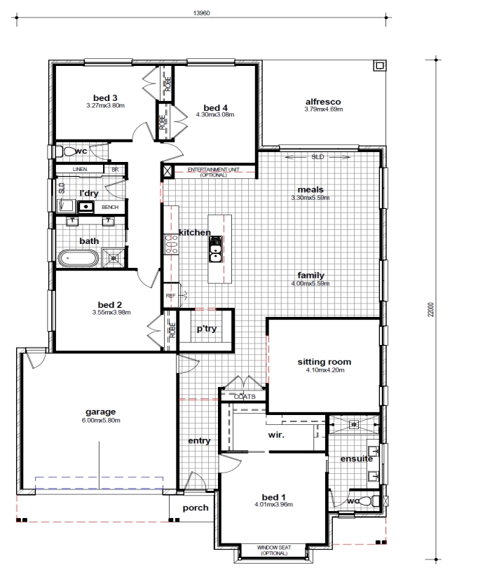
Hawthorn
Bed 4
Bath 2
Living 1
Car 2
Home Design: Hawthorn
Building Type: Single Storey
Floor Area: 277.61m2
House Width: 13.96m
House Length: 22m

Display Homes & 3D Tours for Hawthorn by Cheviot Homes

Loading...
Hawthorn by Cheviot Homes