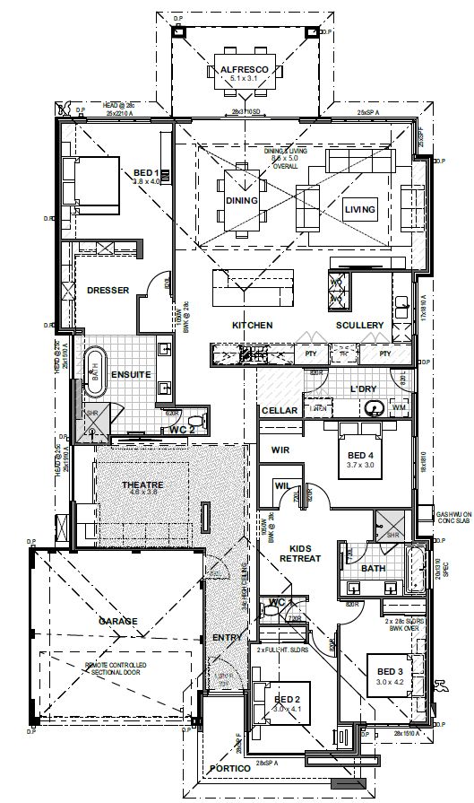
Home Designs by Content Living Shenton by Content Living HOME DESIGN Latest Pricing & Inclusions Floor-plan options for Shenton Shenton 4 2 2 2 Builder: Content Living Home Design: Shenton Building Type: Single Storey Floor Area: 295m2 Min Block Width: 15m Latest Pricing & Inclusions