
Hamilton by Coral Homes
DISPLAY HOME
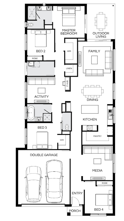
Our versatile Hamilton Series features four bedrooms, spacious living areas, and an outdoor alfresco that seamlessly opens up from the family room, making this home perfect for your indoor/outdoor entertaining plans.
Display Homes & 3D Tours for Hamilton by Coral Homes
Loading...
4