Hilltop by Creation Homes

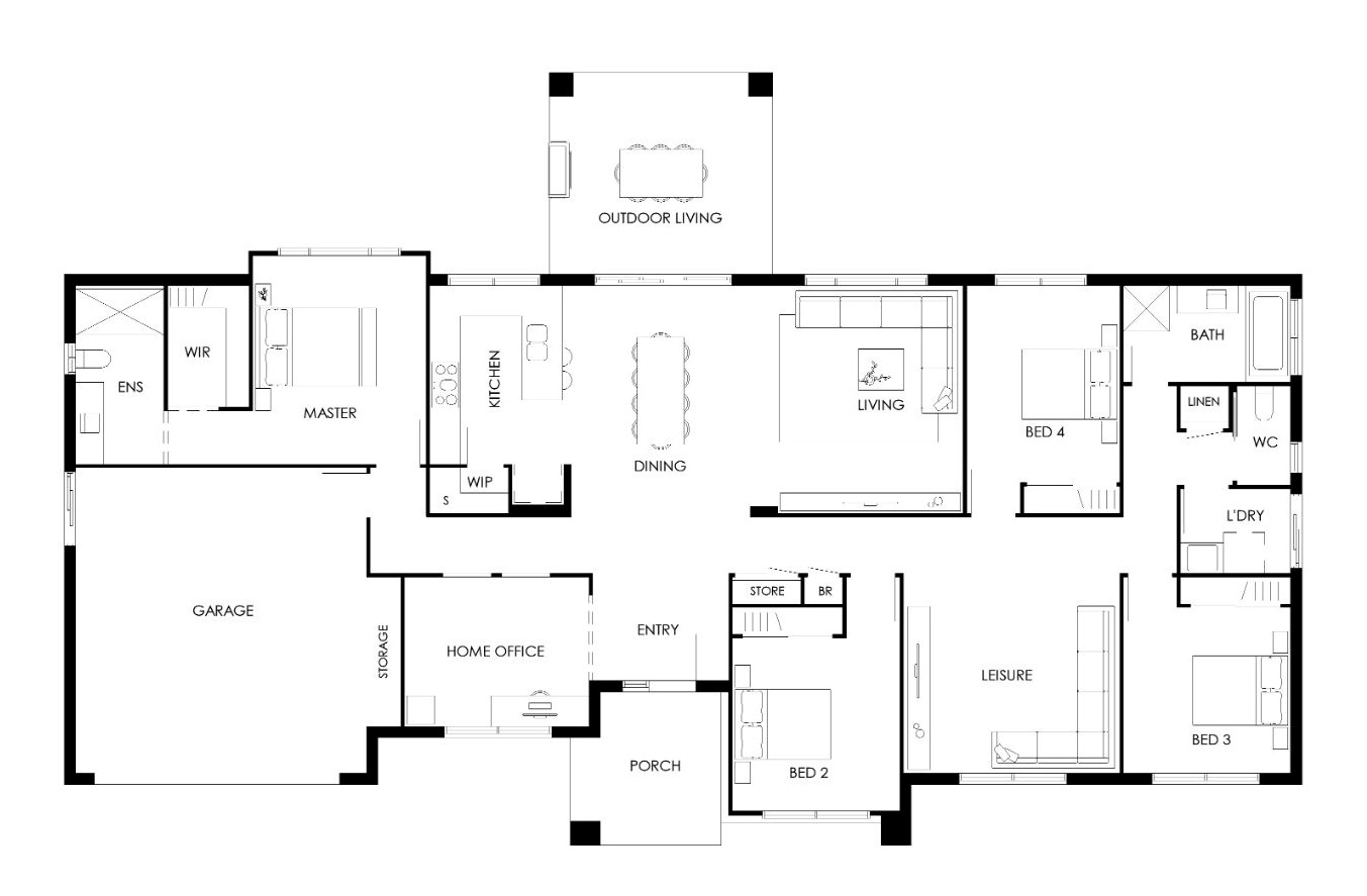
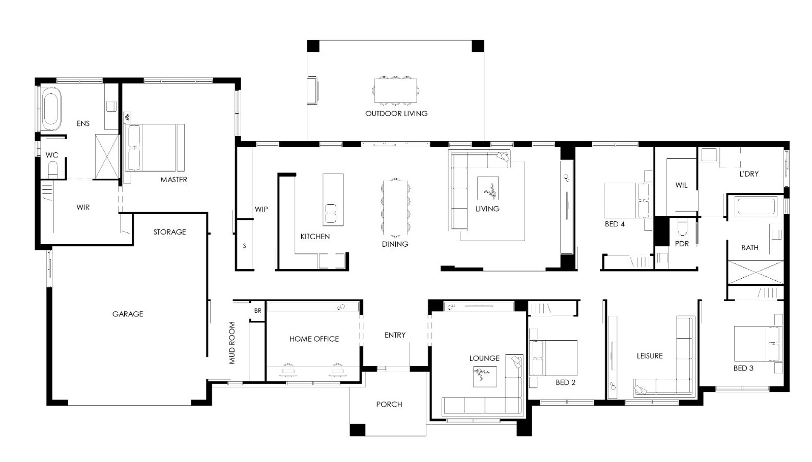
Welcome to the Hilltop 37, a thoughtfully designed single-storey family home spanning 348.3 m². With an inviting layout that prioritises both comfort and functionality, this home is ideal for modern families.

The Hilltop 37 includes four well-proportioned bedrooms, with the master suite featuring a walk-in robe and ensuite with a bath for ultimate relaxation. Each additional bedroom has a built-in wardrobe, ensuring everyone has their own space. Practical features extend throughout, including a dedicated home office, internal laundry, and a mud room for added convenience.

Two distinct leisure areas – a cosy lounge and an open family area – make this home ideal for entertaining or family movie nights. With modern bathrooms featuring semi-frameless shower screens, ample storage, and a double garage, the Hilltop 37 seamlessly blends style and practicality, offering an inviting retreat for growing families.


Floor-plan options for Hilltop

Hilltop 28
Bed 4
Bath 2
Living 3
Car 2
Home Design: Hilltop
Building Type: Single Storey
Floor Area: 264.71m2
House Width: 24.25m
House Length: 15.15m
Hilltop 37
Bed 4
Bath 2
Living 3
Car 2
Home Design: Hilltop
Building Type: Single Storey
Floor Area: 348.26m2
House Width: 29.36m
House Length: 15.45m

More House and Land Packages by Creation Homes (Home Builder)


More Townhouses by Creation Homes (Home Builder)

Bed  3 Bath  2.5 Car  2
Suburb: Ivanhoe VIC 3079
Land Size: 151.30m²
Orientation: South East
Est. Land Registration: Apr 2025
Est. Completion: May 2025
Intelligent design, timeless materials and tranquil green spaces to match your lifestyle in the iconic Ivanhoe.

This home is the last corner block available within the prestigious Huntingfield Place master-planned community. It has direct front door access from a quiet Huntingfield Place cul de sac (from which the community gets its name) and is orientated towards the peaceful oak-lined Forster Street.

The award winning team at DKO Architecture have incorporated both contemporary and traditional architectural elements to deliver a distinctive façade design that harmoniously sits within the historical Ivanhoe urban context. From the classic pitched roof built form to the modern black aluminium detailing, 1 Huntingfield Place has effortless, natural grace at the foundation of its design.

This honouring of community is further heightened with its interior design, with the sun-drenched landscapes and muted tones of Australian Impressionism (Australia’s first internationally acclaimed art movement, founded locally in Ivanhoe) the main inspiration. The faraway horizons and use of light within the impressionist’s artworks, is infused throughout the interior design; with the interplay of texture, tones and light combining to form a serene home environment.

In the open-plan kitchen, dining and living areas, light-filled spaces and high-end appliances are provided for easy living and achieve a timeless luxury. Ample storage and premium integrated appliances streamline daily routines. The large kitchen island bench, topped in durable stone and illuminated by subtle overhead lighting, provides the perfect space to prepare meals whilst family and friends perch along the breakfast bar. The luxe kitchen morphs seamlessly into an airy dining area and chic living space featuring in-built TV unit storage. Floor-to-ceiling windows and sliding doors invite the lush leafy garden inside, for a connected indoor-outdoor lifestyle.

Generous backyards feature room to relax and entertain. The acclaimed team at Eckersley Garden Architecture have designed this home’s large garden to be relaxed and optimize convenience. These gracious green spaces feature clever plant selection to reduce maintenance, while attracting native birdlife and creating a verdant environment that’s easily visible and accessed.
Further connectivity to the tranquil surrounds is also provided on the first floor, with the master bedroom suite featuring a large north-facing balcony to provide ample fresh air and sunshine. An abundance of light is also achieved in the first floor study nook / children’s play area through multiple skylights.

With thoughtful architecture, gracious interiors and hand-crafted green spaces, 1 Huntingfield Place is designed for how you want to live today and tomorrow. Some particularly stand-out features of this townhome include:

• Large, fully landscaped backyard with outdoor dining area
• Secure, private dual garage and direct street access
• Rooftop solar panels for energy-saving
• Large double-glazed windows and skylights for abundant light
• Premium Italian 90cm cooking appliances, with integrated fridge and dishwasher
• Durable stone benchtops and splashback, including in-built TV unit
• Ground floor powder room for effortless entertaining
• Master suite with large private balcony
• Fit-for-purpose bathrooms, including dual vanities in master ensuites and bathtub in main bathroom for easy child bathing
• Dual-head showers in satin nickel finish, with stone-topped, full length shower shelves for additional storage to all bathrooms.
• Full-sized laundry with extensive in-built storage and direct outdoor access
• No Owners Corporation fees or committee rules!
• Move-in May 2025!
Price: $1,655,000
Bed  3 Bath  2.5 Car  2
Suburb: Ivanhoe VIC 3079
Land Size: 176.00m²
Orientation: North East
Est. Land Registration: Apr 2025
Est. Completion: May 2025
Optional Lift, North Facing Backyard, Additional Study, Large Master Bedroom, and Hotel Bathroom with Double Vanity & Bathtub!
58 FORSTER ST, IVANHOE
Construction Commenced - Huge Stamp Duty Savings Available!

Huntingfield Place is a collection of boutique residences in the prestigious suburb of Ivanhoe, an affluent neighbourhood with an understated charm and an enviable lifestyle.

Be part of a new master-planned community featuring bespoke detailing usually reserved for exclusive, high-end single residences. Created by the prestigious Samma Property Group, with design by the award-winning DKO Architecture.

With thoughtful architecture, gracious interiors, and hand-crafted excellence Huntingfield Place is designed for how you want to live today and tomorrow.

DKO Architecture combines texture, tones, light, and movement with an urban edge. Light and dark, rough and smooth, are masterfully contrasted for a truly memorable design that sits lightly in the surrounding landscape.

Serene architectural design fuses seamlessly with Ivanhoe’s renowned tree-lined streetscapes. Materials have been thoughtfully selected for their tactility and warmth — combining brick, metal, timber, and concrete for effortless natural elegance. Intelligent, highly functional floorplans maximise space, light and ventilation to effortlessly provide comfort and convenience. Gracious interiors with generous proportions, floor-to-ceiling windows and high-end appliances.

Generous backyards feature room to relax and entertain. These tranquil green spaces feature clever landscaping to reduce maintenance while creating a lush, leafy feel that’s visible and easily accessed from living, dining, and kitchen areas.
Price: $1,710,000
Hilltop by Creation Homes