
Woodhaven by Creation Homes
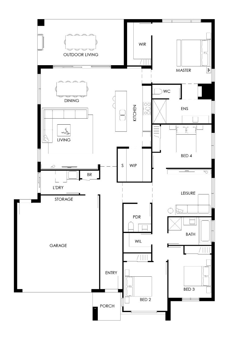
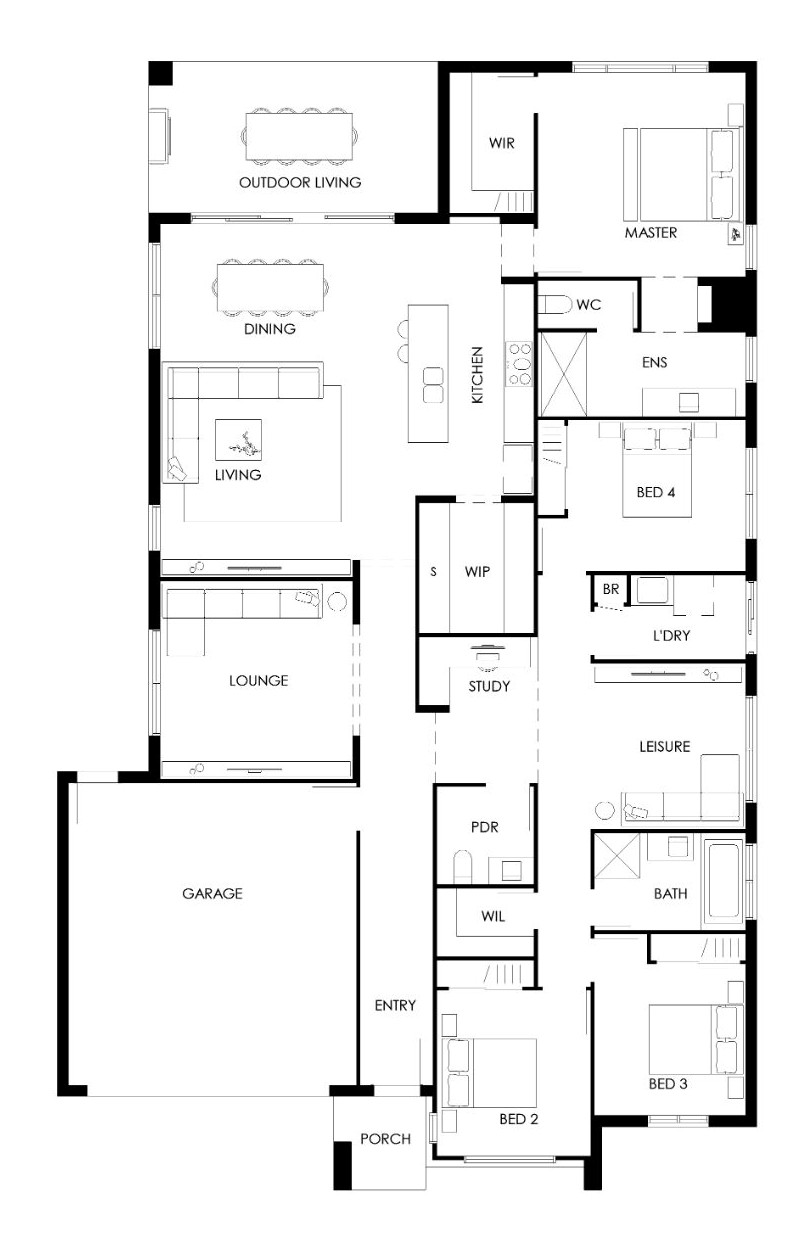
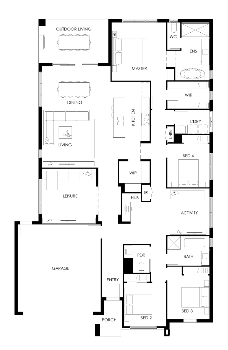
Indulge in the pinnacle of relaxation with our exquisite single-story Woodhaven 28 home design. Boasting four bedrooms, two bathrooms, and a sprawling layout, this home offers unparalleled comfort and luxury.
Step into the Woodhaven 28, where thoughtful design meets everyday comfort. This single-storey home showcases the best of Queensland living, with light-filled interiors, a functional layout, and carefully considered zones for connection and retreat.
Discover four generously sized bedrooms, including a private master suite complete with walk-in robe and a beautifully appointed ensuite. A separate leisure room offers the perfect escape for movie nights, quiet reading, or flexible family living.
At the heart of the home, an open-plan kitchen, dining and living space flows effortlessly to the expansive wraparound outdoor living area – perfect for entertaining or soaking up the sunshine.
Styled with premium finishes, the Woodhaven 28 captures the essence of laid-back sophistication and modern practicality, built for growing families who want more from their home.
Display Homes & 3D Tours for Woodhaven by Creation Homes
More House and Land Packages by Creation Homes (Home Builder)
More Townhouses by Creation Homes (Home Builder)

3
2.5
2This home is the last corner block available within the prestigious Huntingfield Place master-planned community. It has direct front door access from a quiet Huntingfield Place cul de sac (from which the community gets its name) and is orientated towards the peaceful oak-lined Forster Street.
The award winning team at DKO Architecture have incorporated both contemporary and traditional architectural elements to deliver a distinctive façade design that harmoniously sits within the historical Ivanhoe urban context. From the classic pitched roof built form to the modern black aluminium detailing, 1 Huntingfield Place has effortless, natural grace at the foundation of its design.
This honouring of community is further heightened with its interior design, with the sun-drenched landscapes and muted tones of Australian Impressionism (Australia’s first internationally acclaimed art movement, founded locally in Ivanhoe) the main inspiration. The faraway horizons and use of light within the impressionist’s artworks, is infused throughout the interior design; with the interplay of texture, tones and light combining to form a serene home environment.
In the open-plan kitchen, dining and living areas, light-filled spaces and high-end appliances are provided for easy living and achieve a timeless luxury. Ample storage and premium integrated appliances streamline daily routines. The large kitchen island bench, topped in durable stone and illuminated by subtle overhead lighting, provides the perfect space to prepare meals whilst family and friends perch along the breakfast bar. The luxe kitchen morphs seamlessly into an airy dining area and chic living space featuring in-built TV unit storage. Floor-to-ceiling windows and sliding doors invite the lush leafy garden inside, for a connected indoor-outdoor lifestyle.
Generous backyards feature room to relax and entertain. The acclaimed team at Eckersley Garden Architecture have designed this home’s large garden to be relaxed and optimize convenience. These gracious green spaces feature clever plant selection to reduce maintenance, while attracting native birdlife and creating a verdant environment that’s easily visible and accessed.
Further connectivity to the tranquil surrounds is also provided on the first floor, with the master bedroom suite featuring a large north-facing balcony to provide ample fresh air and sunshine. An abundance of light is also achieved in the first floor study nook / children’s play area through multiple skylights.
With thoughtful architecture, gracious interiors and hand-crafted green spaces, 1 Huntingfield Place is designed for how you want to live today and tomorrow. Some particularly stand-out features of this townhome include:
• Large, fully landscaped backyard with outdoor dining area
• Secure, private dual garage and direct street access
• Rooftop solar panels for energy-saving
• Large double-glazed windows and skylights for abundant light
• Premium Italian 90cm cooking appliances, with integrated fridge and dishwasher
• Durable stone benchtops and splashback, including in-built TV unit
• Ground floor powder room for effortless entertaining
• Master suite with large private balcony
• Fit-for-purpose bathrooms, including dual vanities in master ensuites and bathtub in main bathroom for easy child bathing
• Dual-head showers in satin nickel finish, with stone-topped, full length shower shelves for additional storage to all bathrooms.
• Full-sized laundry with extensive in-built storage and direct outdoor access
• No Owners Corporation fees or committee rules!
• Move-in May 2025!

