Orlando by Domaine Homes

DISPLAY HOME

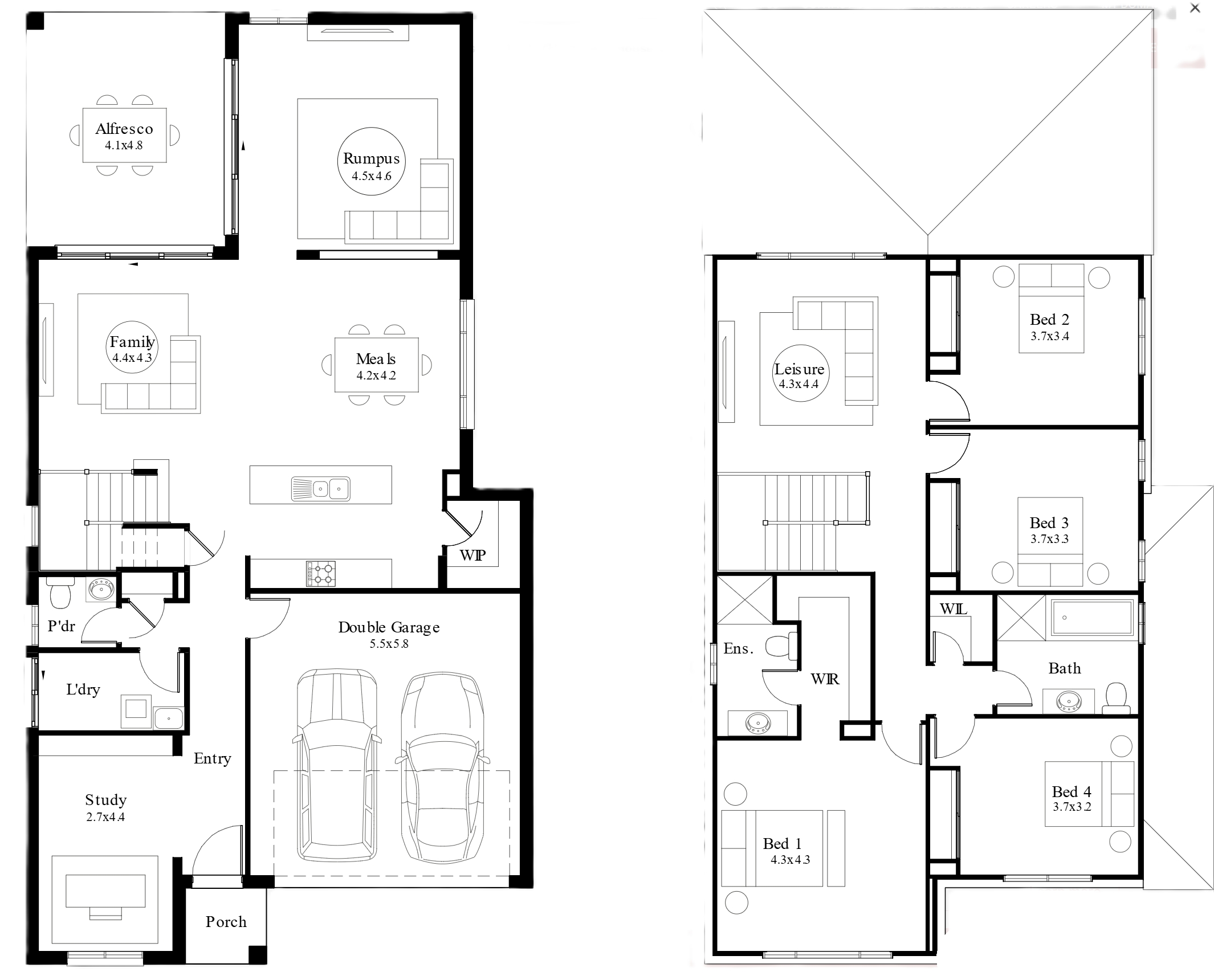
The Orlando 28 is a stylish 4-bedroom, 2.5-bathroom double-storey home designed for large or growing families. With all bedrooms thoughtfully located upstairs, the ground floor is dedicated to stunning open-plan living, ideal for entertaining and everyday life. Flexible options like a butler’s pantry, grand alfresco, or converting the study into a guest bedroom make this home as adaptable as it is functional.

 


Floor-plan options for Orlando

Orlando 28
Bed 4
Bath 2
Car 2
Home Design: Orlando
Building Type: Double Storey
Floor Area: 257m2
House Width: 10.34m
House Length: 16.43m

Display Homes & 3D Tours for Orlando by Domaine Homes

Loading...

More House and Land Packages by Domaine Homes (Home Builder)

Bed  4 Bath  2 Car  2
Suburb: Elderslie NSW 2570
Land Size: 446.00m²
Est. Land Registration: Oct 2026
*$35K OFF YOUR HOME + MORE
This limited collection of just 30 lots enjoys an elevated position with views towards the Blue Mountains. A short walk from excellent schools and child care, bushland, parks and recreational amenities, it’s the ideal community for active, growing families.

Make your home in a well-established neighbourhood, close to shops, dining and services in Narellan Town Centre and Camden’s heritage high street. Discover the best of the Macarthur region.

Land Sizes: Ranging from 375sqm - 605sqm.

Features of Ridgehaven Estate
• Quality design and construction.
• Close to shopping, recreation, and amenities.
• Flexible floor plans to suit growing families and diverse lifestyles.

Packages: house and land packages, no hidden costs.
• Quality floor coverings throughout
• Window coverings throughout
• Ducted Air Conditioning
• Fixed Site Costs
• 7* Basix

Campbell Property Group’s Commitment:
• Focused on making homeownership a reality for Australian families.
• Creating communities centered around lifestyle and future growth.
• Dedicated to a stress-free, enjoyable home buying experience.

*Terms and Conditions apply. Images for illustrative purposes only. Land value included in the package. E&OE. Domaine Homes reserves the right to change the price without notice. Domaine Homes (NSW) Pty Ltd. ABN 19 080 788 969 BL No. 91387C. Prices based on February 2026 Price List.
Price: $1,244,000
Bed  4 Bath  2 Car  2
Suburb: Elderslie NSW 2570
Land Size: 446.00m²
Est. Land Registration: Oct 2026
*$35K OFF YOUR HOME + MORE
This limited collection of just 30 lots enjoys an elevated position with views towards the Blue Mountains. A short walk from excellent schools and child care, bushland, parks and recreational amenities, it’s the ideal community for active, growing families.

Make your home in a well-established neighbourhood, close to shops, dining and services in Narellan Town Centre and Camden’s heritage high street. Discover the best of the Macarthur region.

Land Sizes: Ranging from 375sqm - 605sqm.

Features of Ridgehaven Estate
• Quality design and construction.
• Close to shopping, recreation, and amenities.
• Flexible floor plans to suit growing families and diverse lifestyles.

Packages: house and land packages, no hidden costs.
• Quality floor coverings throughout
• Window coverings throughout
• Ducted Air Conditioning
• Fixed Site Costs
• 7* Basix

Campbell Property Group’s Commitment:
• Focused on making homeownership a reality for Australian families.
• Creating communities centered around lifestyle and future growth.
• Dedicated to a stress-free, enjoyable home buying experience.

*Terms and Conditions apply. Images for illustrative purposes only. Land value included in the package. E&OE. Domaine Homes reserves the right to change the price without notice. Domaine Homes (NSW) Pty Ltd. ABN 19 080 788 969 BL No. 91387C. Prices based on February 2026 Price List.
Price: $1,404,000
Orlando by Domaine Homes