Serenity by Dulger Homes

DISPLAY HOME

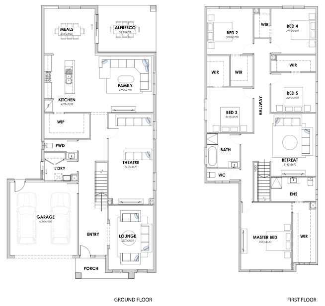
The Serenity 4337 suits lots with 14-meter by 30-meter dimensions and perfectly hosts 5 bedrooms including a master bedroom with a walk-in robe and ensuite, 2 bathrooms, 3 large living rooms and a double garage as well as an alfresco in the rear. This home could be your next masterpiece as it is designed with large open plan living in mind, providing spaces for entertaining, hosting or relaxing with its connected living, kitchen and meal areas, the kitchen boasts a generously sized pantry that can be upgraded into a butler’s pantry. This makes it a perfect dream home for a growing or large family as well as those investment-minded individuals as it ticks all the boxes for your masterpiece.


Floor-plan options for Serenity

Serenity 4337
Bed 5
Bath 2
Living 3
Car 2
Home Design: Serenity
Building Type: Double Storey
Floor Area: 402.90m2
Min Block Width: 14m
Min Block Depth: 30m

Display Homes & 3D Tours for Serenity by Dulger Homes

Loading...

More House and Land Packages by Dulger Homes (Home Builder)

Serenity by Dulger Homes