Millbrook by Eden Brae Homes

DISPLAY HOME

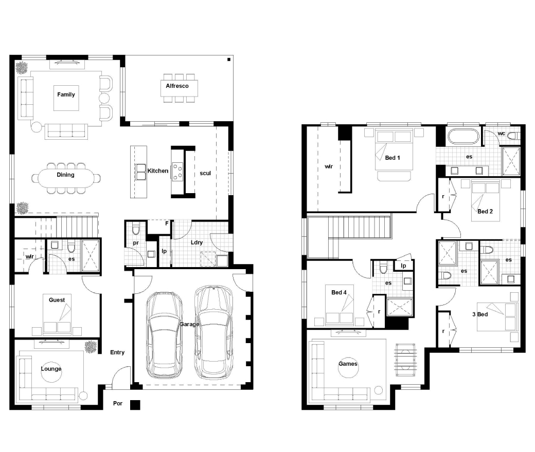
Welcome to the new Millbrook – a luxurious two-storey home designed for multi-generational living, perfect for larger 15m wide blocks.

The Millbrook 35 (Guest Suite) is a spacious double-storey home designed for families who value comfort, flexibility, and connection. Ideal for wider blocks, this home features oversized rooms and expansive living areas that open effortlessly to the backyard, creating a seamless indoor-outdoor lifestyle.

The ground floor Guest Suite and lounge offer a private retreat, perfect for multi-generational living or hosting guests. At the centre of the home is a standout kitchen zone, complete with a walk-around prep kitchen tucked behind the main space, providing ample storage and a practical workspace for busy households.

Upstairs, every bedroom includes its own ensuite, while the luxurious rear master suite is complemented by a large front games room, an ideal teen haven, thoughtfully positioned for privacy.


Floor-plan options for Millbrook

Millbrook 35 – Guest Suite
Bed 5
Bath 5
Car 2
Home Design: Millbrook
Building Type: Double Storey
House Width: 11.87m
House Length: 17.31m

Display Homes & 3D Tours for Millbrook by Eden Brae Homes

Loading...

More House and Land Packages by Eden Brae Homes (Home Builder)

Bed  4 Bath  2 Car  2
Suburb: Melonba NSW 2765
Land Size: 275.00m²
New Home & Land Package by Eden Brae Homes
Newpark is a brand new estate in the fast growing suburb of Melonba located nextdoor to Elara and close to transport, shops, schools and recreation facilities. With its spectacular lake coupled with the stunning outlook towards the distant Blue Mountains, Newpark provides the perfect combination of urban convenience in a serene location.

The Ellenbrook 26 by Eden Brae Homes on Lot 9044 is a contemporary double storey home on a low maintenance block. The home features 4 bedrooms + study nook, 2.5 bathrooms, multiple living areas and includes:

• Advantage Series Luxury Inclusions Ducted air conditioning
• Stone benchtop to kitchen
• SMEG kitchen appliance package
• Selection of either floor tiles or natural timber look laminate flooring to entry, kitchen, meals and family room.
• Selection of quality textured loop pile carpet in a wide range of contemporary colours to balance of home
• Alarm System & Remote Controlled Garage Door
• Plain concrete to alfresco (where applicable)
• Driveway and path to entry
• Efficient Energy Saving Solar System
• Low - E Double Glazing to All Windows*
• Low - E Double Glazing to Sliding Doors in Living Rooms
• R2.5 Glass Wool Wall Insulation
• 'H' class slab
• Wall Wrap to Home
• Above Ground Rainwater Tank
• Ceiling Mounted Fans to Living Areas

For more information please visit the Newpark Land Sales office at 277 Elara Boulevard - open Thursday to Sunday from 10am to 4pm (corner of Elara Blvd & Elkhorn St, Melonba).
Price: $1,174,900
Bed  4 Bath  2 Car  2
Suburb: Cambewarra NSW 2540
Land Size: 500.00m²
Lot 401 - Spacious Hamptons Inspired Home and Land Package by Eden Brae
*Single Storey House and Land Package by Eden Brae*
*Haven Estate*
*500m² block – Modern Hamptons Facade*

Set on a 500m² block, this single-storey Hamptons-inspired home by Eden Brae offers 4 bedrooms, 4 bathrooms, and a double garage. The design balances shared family spaces with private retreats. It features a separate lounge for a second living room or home theatre, a kids’ retreat between bedrooms 2, 3, and 4, plus an open-plan kitchen, dining, and living area that flows to the alfresco.

Package Features & Inclusions:
- Lifestyle Series Luxury Inclusions
- Ducted air conditioning throughout
- Stone benchtop to kitchen
- SMEG kitchen appliance package
- Choice of floor tiles or timber-look laminate to entry, kitchen, meals & family
- Quality textured loop pile carpet to remainder of home
- Alarm system & remote-controlled garage door
- Plain concrete to alfresco (where applicable)
- Driveway and path to entry included
- Efficient energy-saving solar system
- Low-E double glazing to windows & living room sliding doors
- R2.5 glass wool wall insulation & wall wrap to home
- Above-ground rainwater tank
- Ceiling-mounted fans to living areas


ABOUT THE LOCATION

Located at the foothills of Cambewarra Mountain, Haven Estate brings together country charm and coastal convenience. Surrounded by wineries, boutique towns, and beaches, it’s a community built for lifestyle. Only 11 minutes to Nowra’s shopping, dining, and healthcare, 15 minutes to Berry, 20 minutes to Kangaroo Valley, and 30 minutes to Jervis Bay’s iconic white sand beaches, this is South Coast living at its best — just 2 hours from Sydney CBD.


*All images and drawings including landscape plans are for illustrative purposes & should be used as a guide only. Purchasers are advised to refer to the Land Contract and/or Builders Tender and Contract for precise dimensions, specifications and inclusions, price may change subject to selected inclusions. Builder reserves the right to revise plans, specifications, materials and suppliers without notice.*
Price: $974,900
Millbrook by Eden Brae Homes