
d Seven by Eight Homes (8 Homes)
DISPLAY HOME
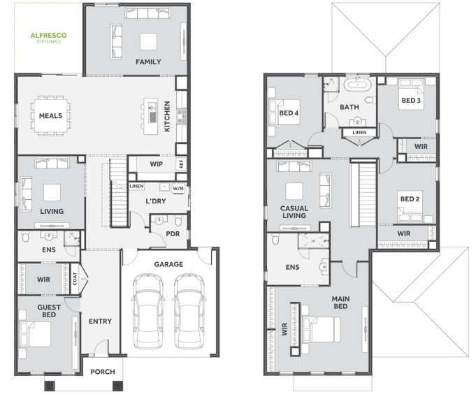
You’ll be overwhelmed by the sense of space and light-filled surroundings that the d SEVEN range promotes with the clever use of open-plan living. A central kitchen is fit for any master chef with an adjoining walk-in pantry, while the guest bedroom to the ground floor, complete with an expansive walk-in robe and ensuite, will delight family and friends.
The d SEVEN range is truly an entertainer’s dream.
Display Homes & 3D Tours for d Seven by Eight Homes (8 Homes)
Loading...
5

