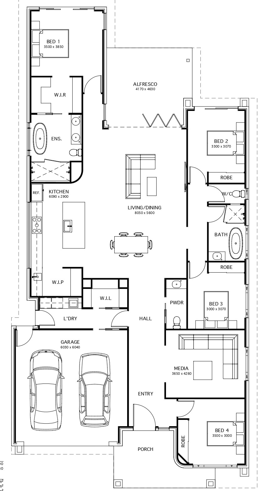
DISPLAY HOME Hamilton 278 | @ SkyRidge Estate - Worongary Home Designs by Evoca Homes Hamilton by Evoca Homes HOME DESIGN Latest Pricing & Inclusions Floor-plan options for Hamilton Hamilton 278 4 2 2 2 Builder: Evoca Homes Home Design: Hamilton Building Type: Single Storey Floor Area: 277.53m2 House Width: 12.84m House Length: 26m Latest Pricing & Inclusions Display Homes & 3D Tours for Hamilton by Evoca Homes Loading... Hamilton 278 By Evoca Homes SkyRidge Estate - Worongary SkyRidge Estate - Worongary