Chatswood by Firstyle Homes

DISPLAY HOME

From the opulent interiors to the exquisite craftsmanship, every detail of this residence exudes elegance and sophistication. Get ready to be dazzled!⁠


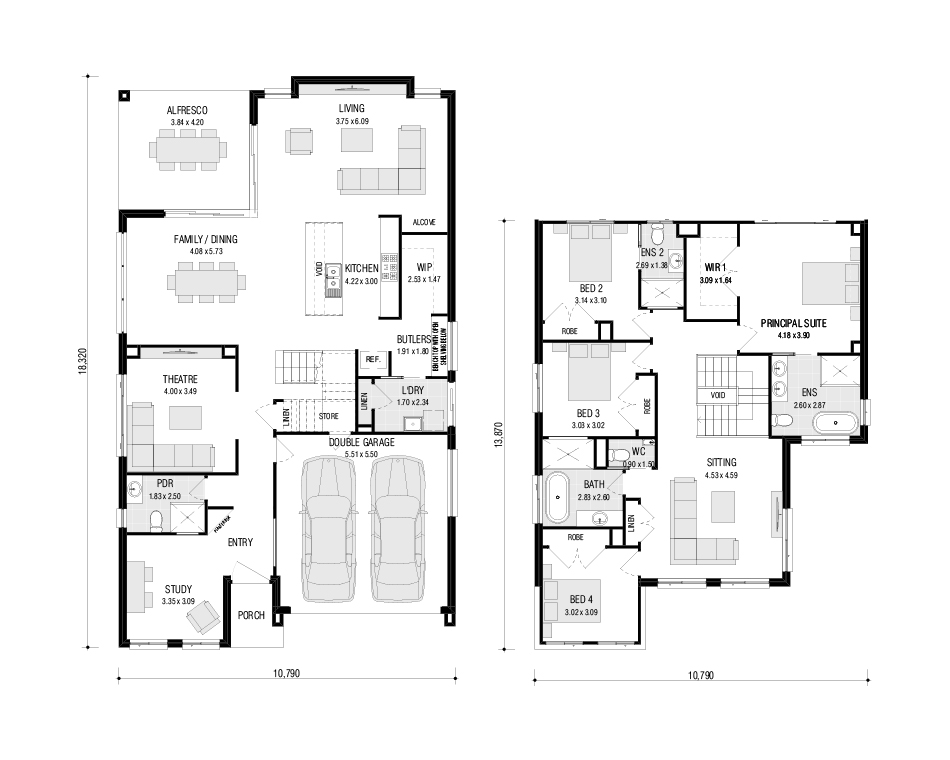
Floor-plan options for Chatswood

Chatswood 33.6 Distinct
Bed 4
Bath 4
Living 3
Car 2
Home Design: Chatswood
Building Type: Double Storey
Floor Area: 311.96m2
House Width: 10.79m
House Length: 18.32m

Display Homes & 3D Tours for Chatswood by Firstyle Homes

Loading...
Chatswood by Firstyle Homes