
Flinders by Geelong Homes
The Flinders 235 – Essential Range A generous family home showcased in our Mt Duneed display home.
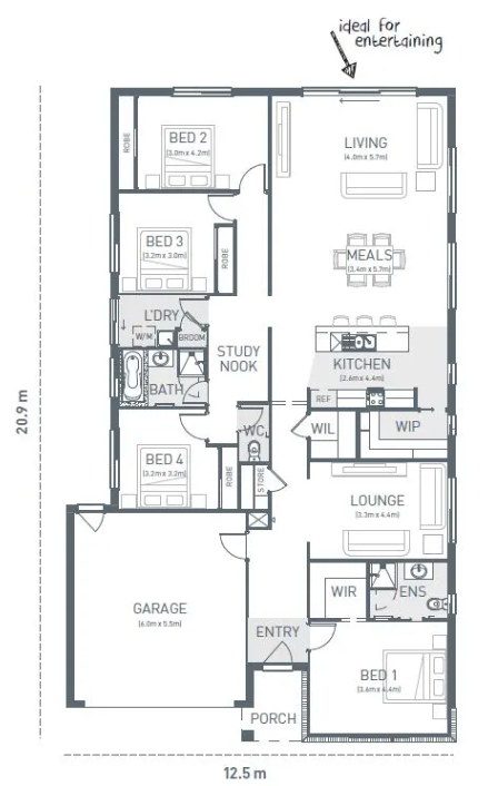
Our display home in Mount Duneed showcases the three distinct zones of our popular Flinders 235 home design—the perfect home that ticks all the boxes for a busy family.
Designed with a parents’ retreat, kids wing and an open plan kitchen-living area, this generous family home is the perfect size for first-home buyers, busy, young families, investors and downsizers.
The open floor plan seamlessly integrates the kitchen with the formal living space and dining area, allowing natural light to filter into the house and creating an ideal setting for residents who cherish entertaining friends and family over shared meals.
The kitchen features all the modern appliances, including a well-thought-out walk-in pantry, helping to keep the kitchen clutter-free.
With ample space to accommodate work and play for the entire family, the Flinders 235 design promises a harmonious blend of functionality and style for parents and children.
It’s hard not to fall in love with the design and lifestyle that the Flinders 235 offers.
Bring your dream home journey closer to reality with a firsthand experience of the Flinders 235.
4